Dom na sprzedaż Warszawa Białołęka, 6 pokoje
1 / 30
Szczegóły
- Cena: 1 750 000 PLN
- Cena za m2: 10 606 PLN
- Powierzchnia: 165 m2
- Liczba pokoi: 6
- Piętro: 0
- Nr oferty: 34964538071
Zapytaj o ofertę!
- VIVA INVEST sp.z o.o
- 696 666 999
- biuro@vivainvest.pl
Opis
Klimatyczny dom z dużą działką – Białołęka, zielona i spokojna okolica
Na sprzedaż stylowy dom jednorodzinny, inspirowany formą dworku, położony na dużej, zielonej działce w atrakcyjnej części warszawskiej Białołęki.
Nieruchomość wybudowana w 2006 roku, z pięknym, dojrzałym ogrodem, w którym rosną m.in. akacje oraz imponująca, stuletnia sosna.
Dom ma swój charakter i klimat, a jednocześnie daje nowemu właścicielowi nowe możliwości aranżacyjne. Wnętrza wymagają remontu i wykończenia, co pozwala dostosować je do własnych potrzeb, gustu i stylu życia. To propozycja dla osób, które szukają domu z duszą i potencjałem, a nie gotowego katalogowego rozwiązania.
Budynek oferuje funkcjonalny układ pomieszczeń oraz dużą liczbę sypialni, dzięki czemu idealnie sprawdzi się jako komfortowy dom dla rodziny, również wielopokoleniowej lub pracującej częściowo zdalnie.
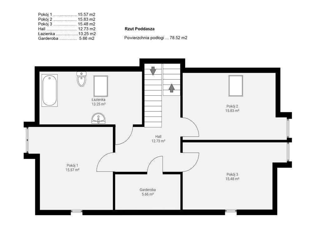
Rozkład pomieszczeń
Parter:
1. hall- 15 m2
2. przestronny salon z kominkiem- 24,6
3. duża, otwarta kuchnia- 13 m2
4. pomieszczenie gospodarcze przy kuchni- 0,7 m2
5. sypialnia- 12,6 m2
6. sypialnia- 14,6 m2
7. łazienka z toaletą- 4,5 m2
8. osobna toaleta- 1 m2
9. kotłownia
Piętro:
1. hall- 12,7 m2
2 łazienka- 13 m2
3. sypialnia- 15,5 m2
4. sypialnia- 15,5 m2
5. sypialnia- 15,5 m2
6. garderoba- 5,6 m2
Dom został wybudowany z wysokiej jakości materiałów, jest ocieplony i solidny konstrukcyjnie. Modernizacja pozwoli w pełni wydobyć jego atuty.
Ogromnym plusem nieruchomości jest duża działka, zapewniająca prywatność, przestrzeń do wypoczynku i możliwość dalszej aranżacji ogrodu.
Lokalizacja łączy w sobie ciszę, zieleń i świetną infrastrukturę. W pobliżu znajdują się szkoły, przedszkola, sklepy, punkty usługowe oraz miejsca rekreacji. W okolicy dominuje niska, zadbana zabudowa jednorodzinna i dobre sąsiedztwo.
To oferta dla osób szukających domu z charakterem, w spokojnej, zielonej części miasta, z pełnym zapleczem miejskim i dużym potencjałem na przyszłość.
Lokalizacja
W pobliżu
Park
- 2135m - Park Syrenki
- 2648m - Forest park
- 3801m - Park Magiczny
Szkoła
- 297m - Szkoła Podstawowa nr 361 im. Papcia Chmiela
- 1695m - Prywatna Szkoła Podstawowa Akademia Myśli Przyszłości
- 1807m - School No. 125
Przychodnia
- 1826m - Medical Center Kobiałka
- 2106m - Przychodnia Hadmedica Warszawa
- 2462m - Centrum Medyczne CMP Białołęka
Przystanek
- 699m - Verdiego 01
- 858m - Zdziarska - Kanał 03
- 967m - Mochtyńska - Kanał 02



























































