Lokal usługowy na sprzedaż Warszawa Śródmieście, Stanisława Noakowskiego
1 / 22
Szczegóły
- Cena: 1 770 000 PLN
- Cena za m2: 20 613 PLN
- Powierzchnia: 85.87 m2
- Piętro: 0
- Nr oferty: 34964536032
Zapytaj o ofertę!
- VIVA INVEST sp.z o.o
- 696 666 999
- biuro@vivainvest.pl
Opis
Lokal komercyjny z dużym potencjałem inwestycyjnym, obecnie wynajęty w modelu długoterminowym. Nieruchomość zapewnia stabilną i wysoką stopę zwrotu.
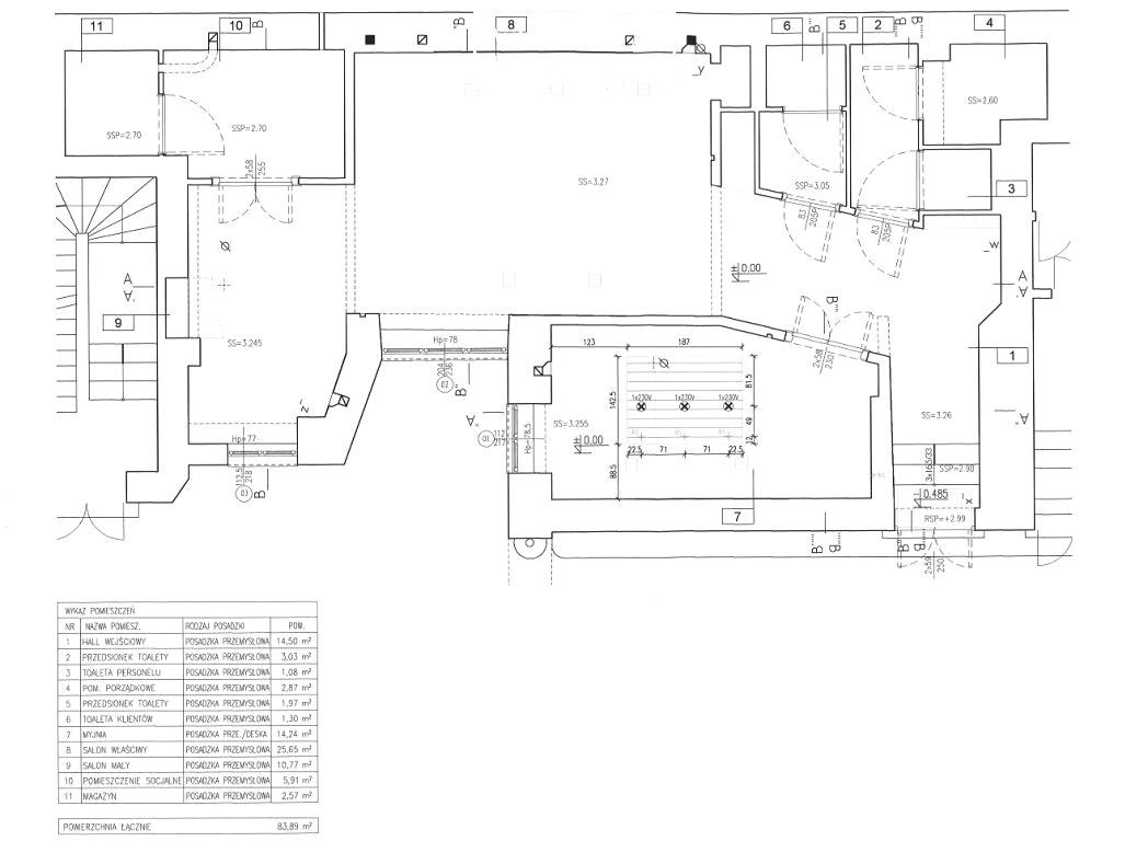
Na sprzedaży lokal mieszkalno - usługowy o powierzchni 83,89 m² usytuowany na parterze oficyny środkowej, zabytkowej i unikatowej kamienicy przy ul. Stanisława Noakowskiego 12.
Lokalizacja
Śródmieście Południowe to prestiżowa i reprezentacyjna część Warszawy. Lokal znajduje się zaledwie 1km od dworca centralnego, tuż przy metrze Politechnika, w sąsiedztwie tramwajów, autobusów, Hali Koszyki, Politechniki Warszawskiej oraz ekskluzywnych butików, restauracji i kawiarni. To idealne miejsce dla działalności premium, łączące komfortowy dostęp do centrum miasta z elegancją i klimatem historycznych kamienic. To wyjątkowa propozycja dla osób i firm poszukujących prestiżowej, funkcjonalnej i klimatycznej przestrzeni w sercu Warszawy - idealna na salon fryzjerski, ekskluzywny salon urody, gabinet medycyny estetycznej, gabinet stomatologiczny, showroom marki modowej lub biuro kreatywne.
Najważniejsze atuty nieruchomości
To niezwykłe mieszkanie może stanowić elegancką przestrzeń biznesową. Obecnie zaaranżowane jako luksusowy salon fryzjerski
Prestiżowa lokalizacja - w sercu Śródmieścia Południowego, kilka minut spacerem do Hali Koszyki, Politechniki i dworca centralnego. Doskonała komunikacja: metro, tramwaje, autobusy.
Historyczna kamienica: niezwykła, zabytkowa kamienica, projektu Edwarda Ebera, zbudowana w 1910 roku na zlecenie Arona Oppenheima. Położona vis a vis reprezentacyjnego gmachu głównego Politechniki Warszawskiej. Zachowane zostały oryginalne elementy dekoracyjne, a wnętrza nawiązują do geometryzującej secesji. Wykończenie nieruchomości w surowym, designerskim stylu. Wysokie okna wychodzące na ciche patio, zachowujące oryginalny charakter kamienicy.
Warte docenienia są ceramiczne, secesyjne płytki na ścianach przejazdu bramnego prowadzącego do opisywanego lokalu, kultowy ołtarz czy posadzki. Drewniane odrestaurowane drzwi i klimatyczne wnętrza podkreślają historyczny charakter lokalu.
Funkcjonalny układ pomieszczeń:
hall wejściowy
przestronny open space - obecnie 5 stanowisk fryzjerskich + 2 stanowiska do mycia
oddzielne pomieszczenie - salon pielęgnacji włosów - 2 stanowiska fryzjerskie + stanowisko do mycia
pomieszczenia sanitarne dla klientów i personelu
pomieszczenie socjalne
magazyn
Wysoki standard wykończenia: minimalistyczny, designerski styl, beton prążkowany na podłodze z ogrzewaniem podłogowym, parapety wykonane z naturalnego drzewa sosnowego, drewniane drzwi zaprojektowane przez architekta i wykonane zgodnie z zaleceniami konserwatora. Lokal jest jasny i przestronny, a wysokość pomieszczeń ok. 3,30m oraz klimatyczne oświetlenie złożone z wielu opraw oświetleniowych, pozwalają na idealne dostosowanie światła do wszelkich potrzeb. Wszystkie instalacje zostały wymienione.
Dodatkowe wyposażenie: lokal sprzedawany z profesjonalnym sprzętem fryzjerskim, istnieje możliwość pozostawienia całego wyposażenia.
Cisza i komfort: lokal zlokalizowany jest na parterze oficyny środkowej. Jego ogromnym atutem jest bezpośrednie wejście wprost z bramy wewnętrznej. Okna lokalu wychodzą na dziedziniec, co sprawia, że nieruchomość pozostaje perfekcyjnie cicha, co dodaje jej komfortu i elegancji.
Dodatkowe informacje:
Lokal oznaczony jako mieszkalny,
Powierzchnia zatwierdzona przez Biuro Architektury i Planowania Przestrzennego: 83,89 m²
Powierzchnia użytkowa wg KW: 77,53 m²
Stan prawny: własność
Czynsz administracyjny: 1 200 zł
Ten lokal to prestiż, styl i funkcjonalność w jednym. Świetny dla wszelkiej działalności skierowanie do klientów segmentu premium. Unikalne wnętrza, wysoki standard wykończenia oraz lokalizacja w sercu Warszawy bez wątpienia pomogą zbudować prestiż Twojej marce.
Serdecznie zapraszam do kontaktu i na prezentację.
Na sprzedaży lokal mieszkalno - usługowy o powierzchni 83,89 m² usytuowany na parterze oficyny środkowej, zabytkowej i unikatowej kamienicy przy ul. Stanisława Noakowskiego 12.
Lokalizacja
Śródmieście Południowe to prestiżowa i reprezentacyjna część Warszawy. Lokal znajduje się zaledwie 1km od dworca centralnego, tuż przy metrze Politechnika, w sąsiedztwie tramwajów, autobusów, Hali Koszyki, Politechniki Warszawskiej oraz ekskluzywnych butików, restauracji i kawiarni. To idealne miejsce dla działalności premium, łączące komfortowy dostęp do centrum miasta z elegancją i klimatem historycznych kamienic. To wyjątkowa propozycja dla osób i firm poszukujących prestiżowej, funkcjonalnej i klimatycznej przestrzeni w sercu Warszawy - idealna na salon fryzjerski, ekskluzywny salon urody, gabinet medycyny estetycznej, gabinet stomatologiczny, showroom marki modowej lub biuro kreatywne.
Najważniejsze atuty nieruchomości
To niezwykłe mieszkanie może stanowić elegancką przestrzeń biznesową. Obecnie zaaranżowane jako luksusowy salon fryzjerski
Prestiżowa lokalizacja - w sercu Śródmieścia Południowego, kilka minut spacerem do Hali Koszyki, Politechniki i dworca centralnego. Doskonała komunikacja: metro, tramwaje, autobusy.
Historyczna kamienica: niezwykła, zabytkowa kamienica, projektu Edwarda Ebera, zbudowana w 1910 roku na zlecenie Arona Oppenheima. Położona vis a vis reprezentacyjnego gmachu głównego Politechniki Warszawskiej. Zachowane zostały oryginalne elementy dekoracyjne, a wnętrza nawiązują do geometryzującej secesji. Wykończenie nieruchomości w surowym, designerskim stylu. Wysokie okna wychodzące na ciche patio, zachowujące oryginalny charakter kamienicy.
Warte docenienia są ceramiczne, secesyjne płytki na ścianach przejazdu bramnego prowadzącego do opisywanego lokalu, kultowy ołtarz czy posadzki. Drewniane odrestaurowane drzwi i klimatyczne wnętrza podkreślają historyczny charakter lokalu.
Funkcjonalny układ pomieszczeń:
hall wejściowy
przestronny open space - obecnie 5 stanowisk fryzjerskich + 2 stanowiska do mycia
oddzielne pomieszczenie - salon pielęgnacji włosów - 2 stanowiska fryzjerskie + stanowisko do mycia
pomieszczenia sanitarne dla klientów i personelu
pomieszczenie socjalne
magazyn
Wysoki standard wykończenia: minimalistyczny, designerski styl, beton prążkowany na podłodze z ogrzewaniem podłogowym, parapety wykonane z naturalnego drzewa sosnowego, drewniane drzwi zaprojektowane przez architekta i wykonane zgodnie z zaleceniami konserwatora. Lokal jest jasny i przestronny, a wysokość pomieszczeń ok. 3,30m oraz klimatyczne oświetlenie złożone z wielu opraw oświetleniowych, pozwalają na idealne dostosowanie światła do wszelkich potrzeb. Wszystkie instalacje zostały wymienione.
Dodatkowe wyposażenie: lokal sprzedawany z profesjonalnym sprzętem fryzjerskim, istnieje możliwość pozostawienia całego wyposażenia.
Cisza i komfort: lokal zlokalizowany jest na parterze oficyny środkowej. Jego ogromnym atutem jest bezpośrednie wejście wprost z bramy wewnętrznej. Okna lokalu wychodzą na dziedziniec, co sprawia, że nieruchomość pozostaje perfekcyjnie cicha, co dodaje jej komfortu i elegancji.
Dodatkowe informacje:
Lokal oznaczony jako mieszkalny,
Powierzchnia zatwierdzona przez Biuro Architektury i Planowania Przestrzennego: 83,89 m²
Powierzchnia użytkowa wg KW: 77,53 m²
Stan prawny: własność
Czynsz administracyjny: 1 200 zł
Ten lokal to prestiż, styl i funkcjonalność w jednym. Świetny dla wszelkiej działalności skierowanie do klientów segmentu premium. Unikalne wnętrza, wysoki standard wykończenia oraz lokalizacja w sercu Warszawy bez wątpienia pomogą zbudować prestiż Twojej marce.
Serdecznie zapraszam do kontaktu i na prezentację.
Lokalizacja
W pobliżu
Park
- 203m - Park Imienia M. Trzcińskiego
- 214m - Skwer 3 Batalionu Pancernego AK „Golski"
- 564m - KN ADek Square
Szkoła
- 194m - Z Małej Szkoły w Wielki Swiat
- 245m - British Council Warszawa
- 306m - ITALIANO VERO język włoski i kultura włoska Warszawa
Przychodnia
- 318m - Specialist Medical Clinic for employees. Independent Public Public Health Care Center in Warsaw
- 418m - Central Military Medical Clinic CePeLek
- 440m - Przychodnia Zakładowa Przedsiębiorstwa C. Hartwig
Przystanek
- 255m - Noakowskiego 01
- 315m - Plac Konstytucji 03
- 374m - Plac Konstytucji 01











































