Mieszkanie na sprzedaż Warszawa Bemowo, Batalionów Chłopskich, 3 pokoje
Szczegóły
- Cena: 870 000 PLN
 - Cena za m2: 17 228 PLN
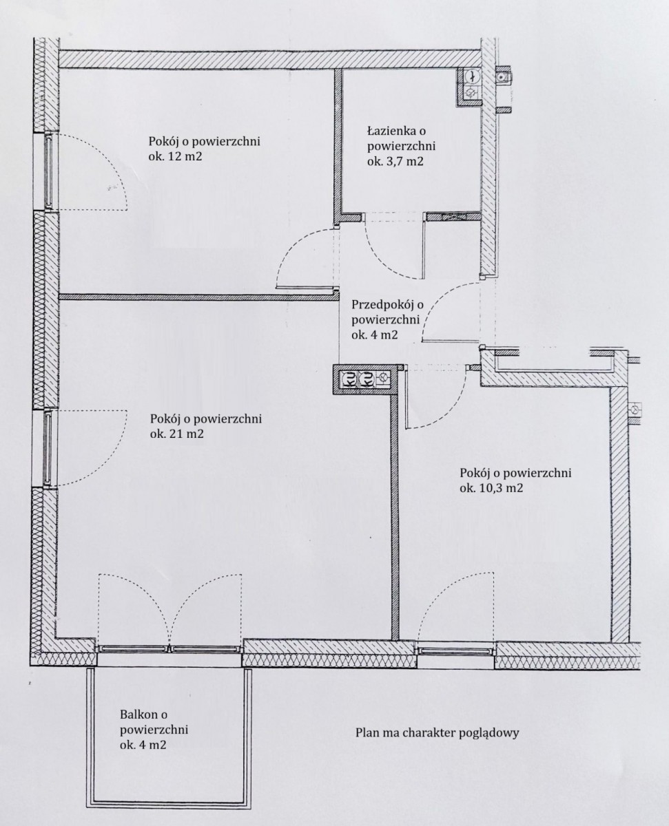
 - Powierzchnia: 50.5 m2
 - Liczba pokoi: 3
 - Piętro: 3
 - Nr oferty: 34964532108
 
Zapytaj o ofertę!
- VIVA INVEST sp.z o.o
 - 696 666 999
 - biuro@vivainvest.pl
 
Opis
Oferuję do sprzedaży atrakcyjne mieszkanie znajdujące się w budynku z 2017 roku przy ulicy Batalionów Chłopskich. Lokal ma powierzchnię 50,5 m2 i składa się z pokoju dziennego z aneksem kuchennym o pow. ok. 21 m2, dwóch sypialni o pow. ok. 10,3 i 12 m2, łazienki z wc o pow. ok 3,7 m2 oraz przedpokoju o pow. 4 m2. 
Z dużego pokoju można wyjść na balkon o pow. ok. 4 m2 (ekspozycja południowa). Mieszkanie jest słoneczne. Okna dużego pokoju wychodzą na zachód i południe. Jedna z sypialni ma ekspozycję południową a druga zachodnią. 
W okolicy znajdują się liczne sklepy (w tym dyskonty spożywcze) a także punkty usługowe. W okolicy znajdują się również przedszkola i szkoły publiczne. Lokalizacja zapewnia sprawną komunikację z centrum miasta. Stacja Metra (M2) "Chrzanów" zostanie otwarta dla pasażerów najprawdopodobniej w drugiej połowie 2026 roku. 
- Mieszkanie jest częściowo umeblowane
 - Opłaty do wspólnoty wynoszą około - 820 pln.
 - Stanowisko w garażu płatne dodatkowo 45,000 pln
 - Komórka lokatorska płatne dodatkowo 15,000 pln
 
Zapraszam na prezentację.
Lokalizacja
W pobliżu
- 308m - Park
 - 416m - Park osiedlowy
 - 659m - Dog Park
 
- 303m - Primary School Gaudeamus
 - 681m - Szkoła Podstawowa nr 350 im. Armii Krajowej
 - 681m - Primary School No. 316 to them. A. Lindgren
 
- 285m - Centrum Zdrowia Psychicznego
 - 303m - Samodzielny Zespół Publicznych Zakładów Lecznictwa Otwartego Warszawa Bemowo-Włochy
 - 621m - Przychodnia Lekarsko Rehabilitacyjna NIKOMED
 
- 204m - Batalionów Chłopskich 01
 - 249m - Batalionów Chłopskich 02
 - 538m - Człuchowska 01
 



























