Mieszkanie na sprzedaż Warszawa Białołęka, Przejezdna, 3 pokoje
1 / 12
Szczegóły
- Cena: 715 000 PLN
- Cena za m2: 13 485 PLN
- Powierzchnia: 53.02 m2
- Liczba pokoi: 3
- Piętro: 1
- Nr oferty: 34964536923
Zapytaj o ofertę!
- VIVA INVEST sp.z o.o
- 696 666 999
- biuro@vivainvest.pl
Opis
Przestronne i funkcjonalne mieszkanie na warszawskiej Białołęce przy ulicy Przejezdnej 12 o powierzchni 53,02 m² usytuowane na 1. piętrze w budynku z windą.
Mieszkanie znajduje się w inwestycji Aura Garden, zrealizowanej przez renomowanego dewelopera Mill-Yon. Osiedle charakteryzuje się nowoczesną architekturą, starannie zaaranżowanymi częściami wspólnymi oraz dużą ilością zieleni, która tworzy przyjazny i spokojny klimat. Okolica zapewnia ciszę i komfort, a jednocześnie szybki dostęp do pełnej infrastruktury usługowej. Dzięki pobliskim terenom rekreacyjnym i dogodnej komunikacji, miejsce łączy zalety spokojnego otoczenia z funkcjonalnością miejskiego życia.
Forma własności: pełna własność z księgą wieczystą – możliwy zakup na kredyt hipoteczny.
Mieszkanie nie posiada udziału w drodze, co umożliwia zakup przez osoby z zagranicy bez zgody MSWiA.
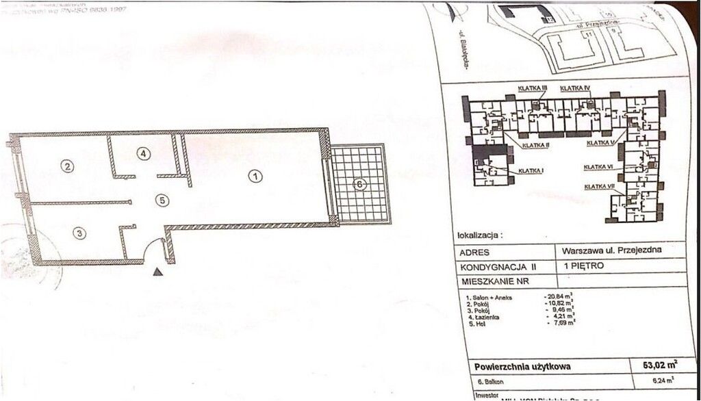
Na mieszkanie o powierzchni 53,02 m² na 1 piętrze, w budynku z windą, składają się:
- Salon z aneksem kuchennym (20,84 m²) z wyjściem na balkon (6,24 m²), ekspozycja wschodnia
- Sypialnia (10,82 m²) z ekspozycją zachodnią
- Pokój (9,46 m²) z ekspozycją zachodnią
- Łazienka z wanną (4,21 m²)
- Hol (7,69 m²)
LOKALIZACJA
Bliskość natury: tereny rekreacyjne wzdłuż Kanału Żerańskiego, ścieżki spacerowe i rowerowe
Rekreacja: zielone przestrzenie osiedlowe, place zabaw, spokojna okolica sprzyjająca wypoczynkowi
Sklepy i usługi: w pobliżu Carrefour, Lidl, Biedronka, Netto oraz centra handlowe Factory Annopol, M1, Galeria Północna i CH Marywilska
Edukacja i opieka: liczne przedszkola, szkoły i punkty opieki w najbliższej okolicy
Komunikacja: przystanki autobusowe 120 i 134, szybki dojazd do Trasy Toruńskiej i dobre połączenie z pozostałymi częściami miasta
PARKING
Do mieszkania przynależy miejsce postojowe w garażu podziemnym na poziomie -1 dodatkowo płatne 35 000 zł
Mieszkanie jest gotowe do wprowadzenia i stanowi idealną propozycję dla rodzin, par, a także jako inwestycja pod wynajem.
Zapraszam do kontaktu w celu uzyskania dodatkowych informacji i umówienia prezentacji.
Mieszkanie znajduje się w inwestycji Aura Garden, zrealizowanej przez renomowanego dewelopera Mill-Yon. Osiedle charakteryzuje się nowoczesną architekturą, starannie zaaranżowanymi częściami wspólnymi oraz dużą ilością zieleni, która tworzy przyjazny i spokojny klimat. Okolica zapewnia ciszę i komfort, a jednocześnie szybki dostęp do pełnej infrastruktury usługowej. Dzięki pobliskim terenom rekreacyjnym i dogodnej komunikacji, miejsce łączy zalety spokojnego otoczenia z funkcjonalnością miejskiego życia.
Forma własności: pełna własność z księgą wieczystą – możliwy zakup na kredyt hipoteczny.
Mieszkanie nie posiada udziału w drodze, co umożliwia zakup przez osoby z zagranicy bez zgody MSWiA.
Na mieszkanie o powierzchni 53,02 m² na 1 piętrze, w budynku z windą, składają się:
- Salon z aneksem kuchennym (20,84 m²) z wyjściem na balkon (6,24 m²), ekspozycja wschodnia
- Sypialnia (10,82 m²) z ekspozycją zachodnią
- Pokój (9,46 m²) z ekspozycją zachodnią
- Łazienka z wanną (4,21 m²)
- Hol (7,69 m²)
LOKALIZACJA
Bliskość natury: tereny rekreacyjne wzdłuż Kanału Żerańskiego, ścieżki spacerowe i rowerowe
Rekreacja: zielone przestrzenie osiedlowe, place zabaw, spokojna okolica sprzyjająca wypoczynkowi
Sklepy i usługi: w pobliżu Carrefour, Lidl, Biedronka, Netto oraz centra handlowe Factory Annopol, M1, Galeria Północna i CH Marywilska
Edukacja i opieka: liczne przedszkola, szkoły i punkty opieki w najbliższej okolicy
Komunikacja: przystanki autobusowe 120 i 134, szybki dojazd do Trasy Toruńskiej i dobre połączenie z pozostałymi częściami miasta
PARKING
Do mieszkania przynależy miejsce postojowe w garażu podziemnym na poziomie -1 dodatkowo płatne 35 000 zł
Mieszkanie jest gotowe do wprowadzenia i stanowi idealną propozycję dla rodzin, par, a także jako inwestycja pod wynajem.
Zapraszam do kontaktu w celu uzyskania dodatkowych informacji i umówienia prezentacji.
Lokalizacja
W pobliżu
Park
- 1658m - Park Syrenki
- 1917m - Forest park
- 3721m - Park Magiczny
Szkoła
- 1207m - Szkoła Podstawowa nr 361 im. Papcia Chmiela
- 1287m - Prywatna Szkoła Podstawowa Akademia Myśli Przyszłości
- 1940m - Szkoła Podstawowa nr 368 im. Polskich Olimpijczyków
Przychodnia
- 801m - Przychodnia Hadmedica Warszawa
- 981m - Przychodnia Wierzbiny
- 1621m - Medical Center Kobiałka
Przystanek
- 481m - Mochtyńska-Kanał 02
- 1378m - Nowiny 01
- 1387m - Kobiałka 01























