Mieszkanie na sprzedaż Warszawa Bielany, Szegedyńska, 2 pokoje
1 / 9
Szczegóły
- Cena: 579 000 PLN
- Cena za m2: 15 863 PLN
- Powierzchnia: 36.5 m2
- Liczba pokoi: 2
- Piętro: 8
- Nr oferty: 34964538993
Zapytaj o ofertę!
- VIVA INVEST sp.z o.o
- 696 666 999
- biuro@vivainvest.pl
Opis
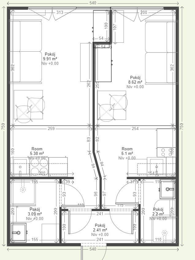
Mieszkanie o powierzchni 36,5 m² zostało funkcjonalnie i przemyślanie podzielone na dwa niezależne studia. Każde studio posiada własną kuchnię oraz łazienkę, co znacząco zwiększa atrakcyjność lokalu w oczach najemców i zapewnia większą prywatność.
Lokal jest świeżo po remoncie, w pełni umeblowany i wyposażony, dzięki czemu jest gotowy do zamieszkania lub wynajęcia od razu po zakupie
Najważniejsze atuty nieruchomości:
• Dwa niezależne studia w jednym lokalu
• Powierzchnia 36,5 m²
• Świeżo po remoncie - brak dodatkowych nakładów finansowych
• W pełni umeblowane i wyposażone
• Budynek z windą
• Okna wychodzące na wschód - mieszkanie jasne i ciche
• Instalacja elektryczna miedziana
• Pełna własność z księgą wieczystą
Lokalizacja:
Bielany to zielona i doskonale skomunikowana dzielnica Warszawy, zapewniająca szybki dostęp zarówno do centrum miasta, jak i terenów rekreacyjnych.
W najbliższym otoczeniu znajdują się:
• Sklepy i punkty usługowe
• Komunikacja autobusowa i tramwajowa
• Las Bielański
• Galeria Młociny
To miejsce, które cieszy się dużym zainteresowaniem najemców, zarówno studentów, jak i osób pracujących.
Dla kogo?
Idealne dla singla
Świetna opcja dla studenta
Doskonała propozycja inwestycyjna z pewnym potencjałem najmu
Zapraszam na prezentację!
Lokal jest świeżo po remoncie, w pełni umeblowany i wyposażony, dzięki czemu jest gotowy do zamieszkania lub wynajęcia od razu po zakupie
Najważniejsze atuty nieruchomości:
• Dwa niezależne studia w jednym lokalu
• Powierzchnia 36,5 m²
• Świeżo po remoncie - brak dodatkowych nakładów finansowych
• W pełni umeblowane i wyposażone
• Budynek z windą
• Okna wychodzące na wschód - mieszkanie jasne i ciche
• Instalacja elektryczna miedziana
• Pełna własność z księgą wieczystą
Lokalizacja:
Bielany to zielona i doskonale skomunikowana dzielnica Warszawy, zapewniająca szybki dostęp zarówno do centrum miasta, jak i terenów rekreacyjnych.
W najbliższym otoczeniu znajdują się:
• Sklepy i punkty usługowe
• Komunikacja autobusowa i tramwajowa
• Las Bielański
• Galeria Młociny
To miejsce, które cieszy się dużym zainteresowaniem najemców, zarówno studentów, jak i osób pracujących.
Dla kogo?
Idealne dla singla
Świetna opcja dla studenta
Doskonała propozycja inwestycyjna z pewnym potencjałem najmu
Zapraszam na prezentację!
Lokalizacja
W pobliżu
Park
- 766m - Las Lindego
- 1263m - Stawy Brustmana
- 2066m - Park Młociński - Polana nad Wisłą
Szkoła
- 79m - Szkoła Podstawowa nr 263 im. Powstańców Wielkopolskich
- 457m - Szkoła Lindego
- 469m - Szkoła Podstawowa z Oddziałami Integracyjnymi nr 247 im. Kazimierza Lisieckiego "Dziadka"
Przychodnia
- 251m - Przychodnia przy Agorze
- 293m - Przychodnia Wrzeciono 10C SPZZLO Warszawa-Żoliborz
- 311m - NiŚOZ Wrzeciono 10C SPZZLO Warszawa Żoliborz-Bielany
Przystanek
- 266m - Przy Agorze 05
- 294m - Przy Agorze 01
- 404m - Przy Agorze 02

















