Mieszkanie na sprzedaż Warszawa Mokotów, Puławska, 3 pokoje
1 / 13
Szczegóły
- Cena: 1 799 000 PLN
- Cena za m2: 24 311 PLN
- Powierzchnia: 74 m2
- Liczba pokoi: 3
- Piętro: 2
- Nr oferty: 34964521199
Zapytaj o ofertę!
- VIVA INVEST sp.z o.o
- 696 666 999
- biuro@vivainvest.pl
Opis
PUŁAWSKA 14 | 75 m² | PO GENERALNYM REMONCIE
NIERUCHOMOŚĆ
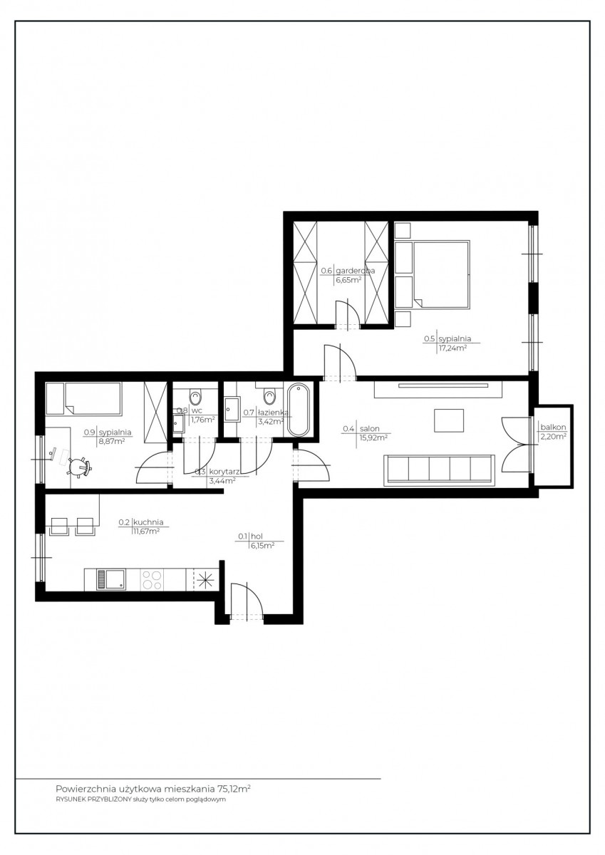
Na sprzedaż mieszkanie po generalnym remoncie, podczas którego wymieniono wszystkie instalacje, odświeżono ściany i podłogi, a także urządzono na nowo kuchnię, łazienkę i toaletę.
Układ mieszkania obejmuje:
• jasny salon od strony wschodniej, z balkonem i widokiem na ul. Puławską,
• dwie sypialnie:
• pierwszą z bardzo dużą garderobą i widokiem na ulicę,
• drugą od strony cichego podwórza (zachód),
• przestronną kuchnię z miejscem na stół, również od strony zachodniej,
• łazienkę,
• oddzielną toaletę,
• wygodny przedpokój z miejscem do przechowywania.
Wysokość pomieszczeń 3,5 m podkreśla unikalny, przestronny charakter wnętrza.
Okna zostały wymienione na nowe i niemal całkowicie wygłuszają odgłosy z zewnątrz.
Wykończenie obejmuje wysokiej jakości materiały: marmur w łazience, kamień Taj Mahal w kuchni oraz drewnianą podłogę.
BUDYNEK
Kamienica przy ul. Puławskiej 14 powstała około 1955 roku i stanowi przykład powojennej architektury modernistycznej. Posiada status zabytku, co dodaje jej prestiżu i charakteru. Wejście do budynku jest zabezpieczone domofonem, a mieszkańcy korzystają z wygodnej windy.
LOKALIZACJA
Ulica Puławska to jeden z najlepiej skomunikowanych adresów Warszawy - w pobliżu znajduje się stacja metra, przystanki tramwajowe i autobusowe. W zasięgu krótkiego spaceru dostępne są liczne sklepy, restauracje, kawiarnie oraz tereny zielone, takie jak Park Morskie Oko. To lokalizacja, która pozwala w pełni korzystać z uroków miasta, łącząc miejski rytm z bliskością natury.
NIERUCHOMOŚĆ
Na sprzedaż mieszkanie po generalnym remoncie, podczas którego wymieniono wszystkie instalacje, odświeżono ściany i podłogi, a także urządzono na nowo kuchnię, łazienkę i toaletę.
Układ mieszkania obejmuje:
• jasny salon od strony wschodniej, z balkonem i widokiem na ul. Puławską,
• dwie sypialnie:
• pierwszą z bardzo dużą garderobą i widokiem na ulicę,
• drugą od strony cichego podwórza (zachód),
• przestronną kuchnię z miejscem na stół, również od strony zachodniej,
• łazienkę,
• oddzielną toaletę,
• wygodny przedpokój z miejscem do przechowywania.
Wysokość pomieszczeń 3,5 m podkreśla unikalny, przestronny charakter wnętrza.
Okna zostały wymienione na nowe i niemal całkowicie wygłuszają odgłosy z zewnątrz.
Wykończenie obejmuje wysokiej jakości materiały: marmur w łazience, kamień Taj Mahal w kuchni oraz drewnianą podłogę.
BUDYNEK
Kamienica przy ul. Puławskiej 14 powstała około 1955 roku i stanowi przykład powojennej architektury modernistycznej. Posiada status zabytku, co dodaje jej prestiżu i charakteru. Wejście do budynku jest zabezpieczone domofonem, a mieszkańcy korzystają z wygodnej windy.
LOKALIZACJA
Ulica Puławska to jeden z najlepiej skomunikowanych adresów Warszawy - w pobliżu znajduje się stacja metra, przystanki tramwajowe i autobusowe. W zasięgu krótkiego spaceru dostępne są liczne sklepy, restauracje, kawiarnie oraz tereny zielone, takie jak Park Morskie Oko. To lokalizacja, która pozwala w pełni korzystać z uroków miasta, łącząc miejski rytm z bliskością natury.
Lokalizacja
W pobliżu
Park
- 422m - Park Morskie Oko
- 587m - Park Szustrów
- 726m - Skwer Antoniego Słonimskiego
Szkoła
- 202m - Szkoła Podstawowa Chocimska
- 219m - Primary School No. 85
- 395m - Medyczna Szkoła Policealna nr 2 w Warszawie
Przychodnia
- 196m - Prof-Medico - poradnia specjalistyczna
- 277m - Przychodnia Medivita
- 430m - Poradnie specjalistyczne Przychodni Rejonowo - Specjalistycznej SZPZLO Warszawa-Mokotów
Przystanek
- 55m - Rakowiecka 05
- 74m - Rakowiecka 06
- 94m - Rakowiecka 02

























