Mieszkanie na sprzedaż Warszawa Mokotów, Cybernetyki, 2 pokoje
1 / 14
Szczegóły
- Cena: 850 000 PLN
- Cena za m2: 22 457 PLN
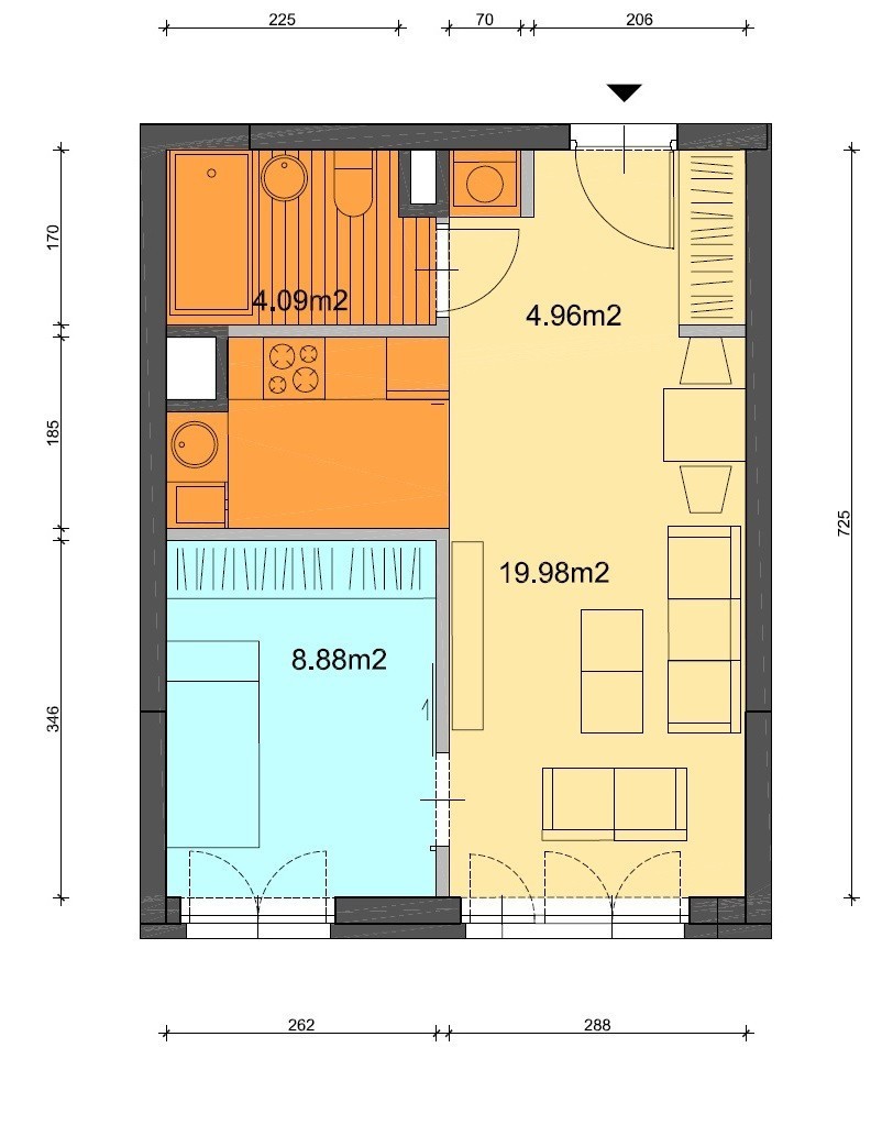
- Powierzchnia: 37.85 m2
- Liczba pokoi: 2
- Piętro: 2
- Nr oferty: 34964535597
Zapytaj o ofertę!
- VIVA INVEST sp.z o.o
- 696 666 999
- biuro@vivainvest.pl
Opis
Mieszkanie na monitorowanym osiedlu Mozaika Mokotów wybudowanym przez Layetana Real Estate przy Cybernetyki 7.
Jest widne, z dużymi drewnianymi oknami od pd-wsch, bez balkonu. Składa się z dwóch pokoi, aneksu kuchennego i łazienki.
Mieszkanie jest obecnie wynajęte z umową do stycznia 2026 roku.
Cena zawiera wyposażenie widoczne na zdjęciach.
Idealne na start lub pod wynajem długo lub krótkoterminowy.
Jest widne, z dużymi drewnianymi oknami od pd-wsch, bez balkonu. Składa się z dwóch pokoi, aneksu kuchennego i łazienki.
Mieszkanie jest obecnie wynajęte z umową do stycznia 2026 roku.
Cena zawiera wyposażenie widoczne na zdjęciach.
Idealne na start lub pod wynajem długo lub krótkoterminowy.
Lokalizacja
W pobliżu
Park
- 271m - Park Belvedere
- 766m - Park Bartłomieja S
- 1181m - Park nad stawem Służewieckim
Szkoła
- 248m - Szkoła Podstawowa Nr 20 im. Jana Gutenberga Fundacji Szkolnej
- 376m - Szkoła Podstawowa nr 142 im. Pułku Lotnictwa Myśliwskiego
- 379m - Szkoła Podstawowa nr 191 filia
Przychodnia
- 162m - MEDECHO Przychodnia Specjalistyczna
- 310m - Bodent przychodnia stomatologiczno - protetyczna.
- 552m - Feminature Clinic - Przychodnia Lekarska
Przystanek
- 318m - Przystanek Piekarnia
- 328m - Bokserska 04
- 330m - Przystanek Postępu 01



























