Mieszkanie na sprzedaż Warszawa Mokotów, J. R. R. Tolkiena, 3 pokoje
1 / 20
Szczegóły
- Cena: 1 480 000 PLN
- Cena za m2: 23 844 PLN
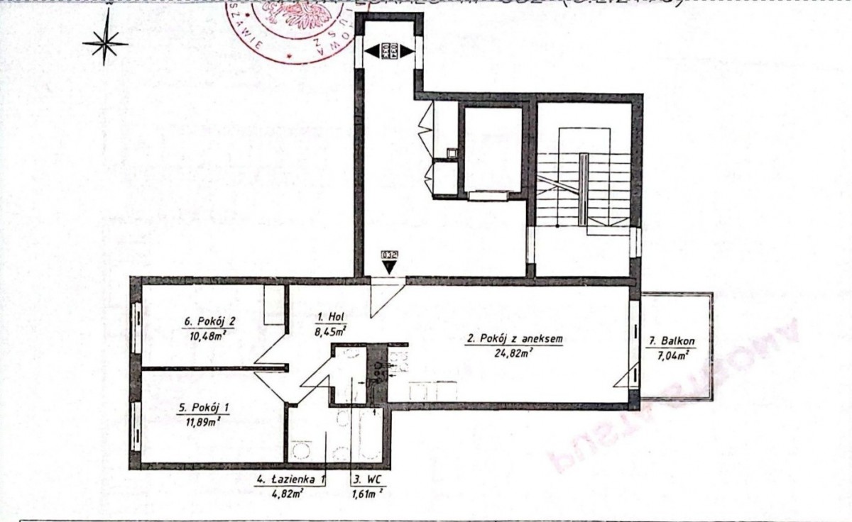
- Powierzchnia: 62.07 m2
- Liczba pokoi: 3
- Piętro: 2
- Nr oferty: 34964535898
Zapytaj o ofertę!
- VIVA INVEST sp.z o.o
- 696 666 999
- biuro@vivainvest.pl
Opis
Wyjątkowa przestrzeń dla Twojej rodziny - 3 pokoje, gotowe do wprowadzenia! Wyjątkowe, dwustronne mieszkanie położone na kameralnym, zamkniętym osiedlu przy ul. J.R.R. Tolkiena 3. Idealne miejsce dla osób, które cenią komfort, spokój i nowoczesny styl życia w doskonałej lokalizacji Mokotowa.
Wyobraź sobie 25-metrowy salon z wschodnią ekspozycją, w którym poranne słońce subtelnie oświetla każdy detal wnętrza. Przestrzeń ta płynnie łączy się z 7-metrowym balkonem - idealnym miejscem na poranną kawę lub wieczorny relaks z widokiem na ciche, zielone patio osiedla.
Dwie przestronne sypialnie z zachodnią ekspozycją tworzą prywatną strefę wypoczynku, gdzie można odpocząć po dniu pełnym wrażeń i podziwiać widok na zachód słońca.
ATUTY:
62,07 m² - funkcjonalny układ z wieloma możliwościami aranżacyjnymi.
Łazienka oraz osobne WC - wygoda na co dzień.
Garderoba / szafa wnękowa - dodatkowa przestrzeń do przechowywania.
Dwustronna ekspozycja (wschód-zachód) - mieszkanie pełne naturalnego światła.
Zamknięte, prestiżowe osiedle z całodobową ochroną i monitoringiem.
STAN TECHNICZNY:
Mieszkanie w bardzo dobrym stanie technicznym, w pełni umeblowane, zadbane i gotowe do wprowadzenia.
DODATKOWE INFORMACJE:
Do mieszkania przynależy miejsce postojowe w garażu podziemnym 50 000 zł razem z zabudowaną komórką lokatorską.
STAN PRAWNY:
Mieszkanie stanowi pełną własność z założoną księgą wieczystą, co oznacza dla Ciebie:
Bezpieczeństwo transakcji - jasny, uregulowany stan prawny, brak ukrytych współwłaścicieli czy roszczeń.
Możliwość zakupu na kredyt - nieruchomość spełnia wszystkie wymagania bankowe, dzięki czemu bez przeszkód możesz sfinansować zakup z pomocą kredytu hipotecznego.
LOKALIZACJA:
Ulica J.R.R. Tolkiena 3 to część nowoczesnej, spokojnej i doskonale skomunikowanej części Mokotowa, w rejonie Stegien i Służewa. Budynek z 2016 roku stanowi część kameralnego osiedla o nowoczesnej architekturze i wysokim standardzie wykonania.
Okolica cieszy się rosnącą popularnością wśród osób szukających balansu między miejskim rytmem a komfortem codziennego życia. W pobliżu znajdują się liczne sklepy, kawiarnie, restauracje, szkoły oraz tereny zielone - w tym Park Dolina Służewiecka i ścieżki spacerowe w rejonie Potoku Służewieckiego.
Doskonały dojazd do centrum, na Mokotów Biznesowy i Lotnisko Chopina czyni tę lokalizację wyjątkowo praktyczną zarówno dla rodzin, jak i osób pracujących w biznesowej części Warszawy.
Ciekawostki i klimat miejsca:
1) Nazwa ulicy J.R.R. Tolkiena nie jest przypadkowa - to jedna z nielicznych ulic w Polsce nazwana na cześć autora Władcy Pierścieni, co dodaje tej lokalizacji wyjątkowego, symbolicznego charakteru
2) Zabudowa w tym rejonie powstawała etapami po 2010 roku, dlatego osiedle zachowuje spójny, nowoczesny charakter - z niską, elegancką architekturą i dużą ilością zieleni między budynkami.
3) W niedalekiej odległości znajduje się Pałac w Wilanowie, a zaledwie kilka minut dalej Galeria Sadyba Best Mall - połączenie historii, natury i nowoczesnego stylu życia.
OTOCZENIE:
Harmonia między ciszą osiedla a energią miasta - idealna przestrzeń do codziennego życia i relaksu.
Zapraszam do kontaktu! To może być Twoje nowe M3!
Z przyjemnością przedstawię szczegóły i pomogę w przeprowadzeniu transakcji krok po kroku.
Wyobraź sobie 25-metrowy salon z wschodnią ekspozycją, w którym poranne słońce subtelnie oświetla każdy detal wnętrza. Przestrzeń ta płynnie łączy się z 7-metrowym balkonem - idealnym miejscem na poranną kawę lub wieczorny relaks z widokiem na ciche, zielone patio osiedla.
Dwie przestronne sypialnie z zachodnią ekspozycją tworzą prywatną strefę wypoczynku, gdzie można odpocząć po dniu pełnym wrażeń i podziwiać widok na zachód słońca.
ATUTY:
62,07 m² - funkcjonalny układ z wieloma możliwościami aranżacyjnymi.
Łazienka oraz osobne WC - wygoda na co dzień.
Garderoba / szafa wnękowa - dodatkowa przestrzeń do przechowywania.
Dwustronna ekspozycja (wschód-zachód) - mieszkanie pełne naturalnego światła.
Zamknięte, prestiżowe osiedle z całodobową ochroną i monitoringiem.
STAN TECHNICZNY:
Mieszkanie w bardzo dobrym stanie technicznym, w pełni umeblowane, zadbane i gotowe do wprowadzenia.
DODATKOWE INFORMACJE:
Do mieszkania przynależy miejsce postojowe w garażu podziemnym 50 000 zł razem z zabudowaną komórką lokatorską.
STAN PRAWNY:
Mieszkanie stanowi pełną własność z założoną księgą wieczystą, co oznacza dla Ciebie:
Bezpieczeństwo transakcji - jasny, uregulowany stan prawny, brak ukrytych współwłaścicieli czy roszczeń.
Możliwość zakupu na kredyt - nieruchomość spełnia wszystkie wymagania bankowe, dzięki czemu bez przeszkód możesz sfinansować zakup z pomocą kredytu hipotecznego.
LOKALIZACJA:
Ulica J.R.R. Tolkiena 3 to część nowoczesnej, spokojnej i doskonale skomunikowanej części Mokotowa, w rejonie Stegien i Służewa. Budynek z 2016 roku stanowi część kameralnego osiedla o nowoczesnej architekturze i wysokim standardzie wykonania.
Okolica cieszy się rosnącą popularnością wśród osób szukających balansu między miejskim rytmem a komfortem codziennego życia. W pobliżu znajdują się liczne sklepy, kawiarnie, restauracje, szkoły oraz tereny zielone - w tym Park Dolina Służewiecka i ścieżki spacerowe w rejonie Potoku Służewieckiego.
Doskonały dojazd do centrum, na Mokotów Biznesowy i Lotnisko Chopina czyni tę lokalizację wyjątkowo praktyczną zarówno dla rodzin, jak i osób pracujących w biznesowej części Warszawy.
Ciekawostki i klimat miejsca:
1) Nazwa ulicy J.R.R. Tolkiena nie jest przypadkowa - to jedna z nielicznych ulic w Polsce nazwana na cześć autora Władcy Pierścieni, co dodaje tej lokalizacji wyjątkowego, symbolicznego charakteru
2) Zabudowa w tym rejonie powstawała etapami po 2010 roku, dlatego osiedle zachowuje spójny, nowoczesny charakter - z niską, elegancką architekturą i dużą ilością zieleni między budynkami.
3) W niedalekiej odległości znajduje się Pałac w Wilanowie, a zaledwie kilka minut dalej Galeria Sadyba Best Mall - połączenie historii, natury i nowoczesnego stylu życia.
OTOCZENIE:
Harmonia między ciszą osiedla a energią miasta - idealna przestrzeń do codziennego życia i relaksu.
Zapraszam do kontaktu! To może być Twoje nowe M3!
Z przyjemnością przedstawię szczegóły i pomogę w przeprowadzeniu transakcji krok po kroku.
Lokalizacja
W pobliżu
Park
- 303m - Park linearny Suwak
- 360m - Park linearny Konstruktorska
- 743m - Platinium Business Park Pond
Szkoła
- 519m - SZKOŁA PODSTAWOWA SPECJALNA NR 22
- 644m - Szkoła Podstawowa nr 205 im. Żołnierzy Powstania Warszawskiego
- 717m - Zespół Placówek Szkolno-Wychowawczo-Rewalidacyjnych nr 1
Przychodnia
- 403m - Family medicine clinic NZOZ
- 985m - Centrum Medyczne Medicover Wołoska
- 1116m - Feminature Clinic - Przychodnia Lekarska
Przystanek
- 212m - Racjonalizacji 04
- 218m - Racjonalizacji
- 287m - Maklakiewicza 01







































