Mieszkanie na sprzedaż Warszawa Ochota, Stefana Baleya, 3 pokoje
1 / 11
Szczegóły
- Cena: 790 000 PLN
- Cena za m2: 14 082 PLN
- Powierzchnia: 56.1 m2
- Liczba pokoi: 3
- Piętro: 4
- Nr oferty: 34964533914
Zapytaj o ofertę!
- VIVA INVEST sp.z o.o
- 696 666 999
- biuro@vivainvest.pl
Opis
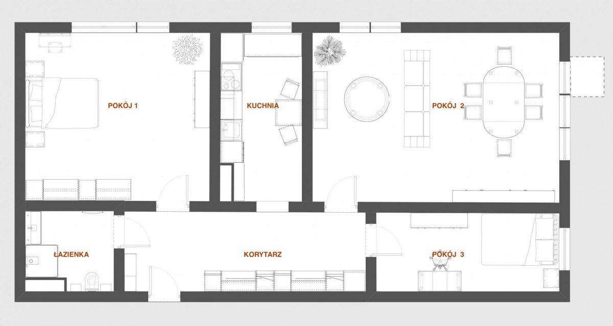
Na sprzedaż mieszkanie o powierzchni 56,10 m² przy ul. Baleya 8. To propozycja dla tych, którzy szukają komfortowego lokum w doskonałej lokalizacji lub stabilnej inwestycji z możliwością wynajmu w całości bądź na pokoje.
Przestronne i funkcjonalne
- Trzy niezależne pokoje
- Kuchnia z oknem - możliwość otwarcia jej na salon, tworząc jasną, nowoczesną strefę dzienną
- Łazienka z prysznicem
- Piwnica (ok. 5 m²) w cenie
Stan mieszkania - do odświeżenia lub remontu, według własnej wizji i potrzeb
Dodatkowe informacje
- Spółdzielcza własność z księgą wieczystą
- Szybki internet dostępny od ręki
- Stabilny najem - mieszkanie było wynajmowane przez kilkanaście lat bez przestojów
- 4 piętro w budynku bez windy
- południowo-zachodnia ekspozycja
Świetna lokalizacja
- Blisko Warszawskiego Uniwersytetu Medycznego
- Dłuższy spacer zaprowadzi Cię do Pola Mokotowskiego, a krótszy - do okolicznych parków
- W pobliżu pełna infrastruktura: sklepy, kawiarnie, restauracje i komunikacja miejska
Cena: 790 000 zł
To mieszkanie daje duże możliwości aranżacyjne i świetnie wpisuje się w rytm życia w sercu Ochoty - funkcjonalne, dobrze skomunikowane i gotowe na nowego właściciela!
Przestronne i funkcjonalne
- Trzy niezależne pokoje
- Kuchnia z oknem - możliwość otwarcia jej na salon, tworząc jasną, nowoczesną strefę dzienną
- Łazienka z prysznicem
- Piwnica (ok. 5 m²) w cenie
Stan mieszkania - do odświeżenia lub remontu, według własnej wizji i potrzeb
Dodatkowe informacje
- Spółdzielcza własność z księgą wieczystą
- Szybki internet dostępny od ręki
- Stabilny najem - mieszkanie było wynajmowane przez kilkanaście lat bez przestojów
- 4 piętro w budynku bez windy
- południowo-zachodnia ekspozycja
Świetna lokalizacja
- Blisko Warszawskiego Uniwersytetu Medycznego
- Dłuższy spacer zaprowadzi Cię do Pola Mokotowskiego, a krótszy - do okolicznych parków
- W pobliżu pełna infrastruktura: sklepy, kawiarnie, restauracje i komunikacja miejska
Cena: 790 000 zł
To mieszkanie daje duże możliwości aranżacyjne i świetnie wpisuje się w rytm życia w sercu Ochoty - funkcjonalne, dobrze skomunikowane i gotowe na nowego właściciela!
Zapraszam serdecznie!
*Uwaga: mieszkanie jest częściowo umeblowane. Zdjęcia bez mebli zostały przygotowane z pomocą sztucznej inteligencji.*
*Uwaga: mieszkanie jest częściowo umeblowane. Zdjęcia bez mebli zostały przygotowane z pomocą sztucznej inteligencji.*
Lokalizacja
W pobliżu
Park
- 293m - Park Wyględowski - Marina Mokotów II
- 496m - Park Wyględów
- 552m - Forty Korotyńskiego Park
Szkoła
- 297m - Primary School No. 280
- 420m - Szkoła Podstawowa nr 10 im. Grzegorza Piramowicza
- 624m - Międzynarodowa Szkoła Podstawowa TE Vizja Mokotów
Przychodnia
- 232m - Przychodnia Warszawa
- 706m - Przychodnia Rejonowo-Specjalistyczna SZPZLO Warszawa-Ochota
- 868m - Przyzakładowa Przychodnia Lekarska "Profilaktyka"
Przystanek
- 122m - Jasielska 01
- 218m - Rakowiec 01
- 252m - Baleya 02





















