Mieszkanie na sprzedaż Warszawa Praga-Południe, Aleja Stanów Zjednoczonych, 3 pokoje
1 / 12
Szczegóły
- Cena: 1 100 000 PLN
- Cena za m2: 14 785 PLN
- Powierzchnia: 74.4 m2
- Liczba pokoi: 3
- Piętro: 5
- Nr oferty: 34964535883
Zapytaj o ofertę!
- VIVA INVEST sp.z o.o
- 696 666 999
- biuro@vivainvest.pl
Opis
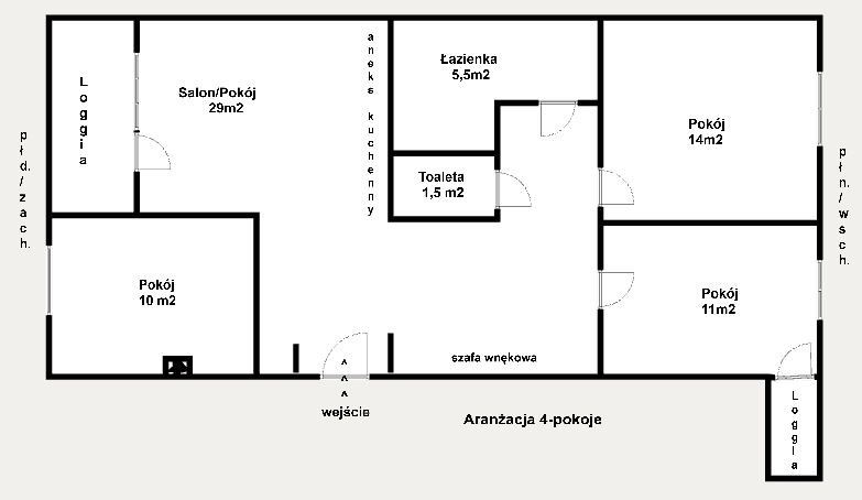
Na sprzedaż przestronne, rozkładowe 3-pokojowe mieszkanie o powierzchni 74,4 m², zlokalizowane na 5 piętrze z 10 pięter budynku z 2007 roku przy al. Stanów Zjednoczonych tu obok ronda Wiatraczna. W skład lokalu wchodzą:
Na podłogach w pokojach drewniany parkiet w bardzo dobrym stanie. Wysokość pomieszczeń wynosi 260 cm, co zwiększa poczucie przestrzeni. Lokal do odświeżenia lub częściowego remontu.
Budynek 10-kondygnacyjny, klatki schodowe w dobrym stanie, duża winda. Brak bezpośredniego sąsiedztwa na klatce schodowej z innymi mieszkaniami.
Wokół zadbane otoczenie, mnóstwo punktów handlowo-usługowych, bazarek (z codzienną dostawą świeżych warzyw i owoców). Bardzo dobra lokalizacja - tuż obok rondo Wiatraczna, przystanki komunikacji miejskiej (tramwaj, autobus), z łatwym połączeniem z innymi dzielnicami. Dojazd komunikacją do ścisłego centrum zajmuje ok. 25 min.
Informacje dodatkowe:
- salon (ok. 29 m²) z wyjściem na loggię z widokiem na patio i budynek od wewnątrz;
- dwa oddzielne pokoje (ok. 14 m² i 11 m²), przy czym mniejszy pokój posiada wyjście na drugą zabudowaną loggię;
- kuchnia z oknem (częściowo otwarta na salon) o pow. ok. 6 m²;
- łazienka z wanną, ok. 4,5m² ;
- oddzielna toaleta, ok. 1,5 m²
- przedpokój o pow. ok. 9 m² (z miejscem na dużą szafę wnękową w zabudowie.
Na podłogach w pokojach drewniany parkiet w bardzo dobrym stanie. Wysokość pomieszczeń wynosi 260 cm, co zwiększa poczucie przestrzeni. Lokal do odświeżenia lub częściowego remontu.
Budynek 10-kondygnacyjny, klatki schodowe w dobrym stanie, duża winda. Brak bezpośredniego sąsiedztwa na klatce schodowej z innymi mieszkaniami.
Wokół zadbane otoczenie, mnóstwo punktów handlowo-usługowych, bazarek (z codzienną dostawą świeżych warzyw i owoców). Bardzo dobra lokalizacja - tuż obok rondo Wiatraczna, przystanki komunikacji miejskiej (tramwaj, autobus), z łatwym połączeniem z innymi dzielnicami. Dojazd komunikacją do ścisłego centrum zajmuje ok. 25 min.
Informacje dodatkowe:
- lokal stanowiący odrębną nieruchomość, bez obciążeń, możliwość zakupu posiłkując się kredytem hipotecznym;
- opłaty na rzecz Spółdzielni Mieszkaniowej (wraz z zaliczkami na media dla 2 osób /woda zimna, ciepła, ogrzewanie, wywóz śmieci/ wynosi ok. 990 zł/miesięcznie;
- brak miejsca postojowego w garażu podziemnym oraz komórki lokatorskiej.
Lokalizacja
W pobliżu
Park
- 338m - Square at Majdanski
- 644m - Park Józefa Polińskiego
- 704m - Skwer Seniora
Szkoła
- 307m - Mikroszkoła Skrzydła
- 390m - Szkola
- 469m - Zespół Szkół Gastronomiczno-Hotelarskich
Przychodnia
- 271m - Samodzielny Zespół Publicznych Zakładów Lecznictwa Otwartego Warszawa-Praga Południe
- 279m - Rondo Wiatraczna Clinic
- 298m - Przychodnia Premium Medical Warszawa
Przystanek
- 50m - Wiatraczna 10
- 70m - Wiatraczna 09
- 72m - Wiatraczna 09























