Mieszkanie na sprzedaż Warszawa Rembertów, Topograficzna, 4 pokoje
1 / 14
Szczegóły
- Cena: 929 000 PLN
- Cena za m2: 10 485 PLN
- Powierzchnia: 88.6 m2
- Liczba pokoi: 4
- Piętro: 3
- Nr oferty: 34964536835
Zapytaj o ofertę!
- VIVA INVEST sp.z o.o
- 696 666 999
- biuro@vivainvest.pl
Opis
Przestronne 4-pokojowe mieszkanie z balkonem i piwnicą 89 m² Rembertów, ul. Topograficzna
To 90-metrowe, jasne i przestronne mieszkanie w Rembertowie będzie idealne dla rodziny lub osób, które cenią przestrzeń i balans między naturą a miastem.
Zadbany budynek z monitoringiem i wyremontowaną klatką schodową. Mieszkanie jest gotowe do zamieszkania.
Szczegóły
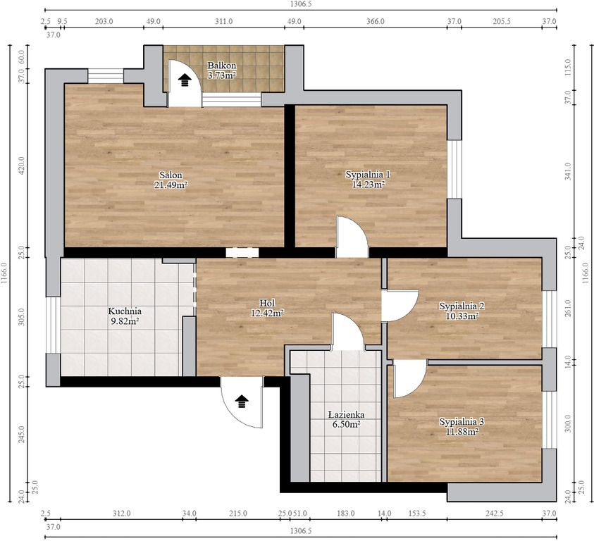
Rozkład pomieszczeń
Funkcjonalny układ, osobna kuchnia i dużo światła dzięki oknom na trzy strony świata.
Kierunek okien
Parkowanie
Bezproblemowe – w okolicy znajduje się dużo ogólnodostępnych miejsc parkingowych.
Okolica
Cicha i zielona część Rembertowa – ponad 30% dzielnicy to lasy.
W pobliżu sklepy, szkoły, przedszkola, punkty usługowe, boiska i tereny spacerowe.
Odległości
To mieszkanie daje przestrzeń, ciszę i komfort życia z szybkim dostępem do centrum Warszawy.
Idealne dla rodziny, osób pracujących zdalnie lub każdego, kto szuka spokoju bez rezygnacji z miejskich udogodnień.
To 90-metrowe, jasne i przestronne mieszkanie w Rembertowie będzie idealne dla rodziny lub osób, które cenią przestrzeń i balans między naturą a miastem.
Zadbany budynek z monitoringiem i wyremontowaną klatką schodową. Mieszkanie jest gotowe do zamieszkania.
Szczegóły
- Powierzchnia: 88,6 m²
- Pokoje: 4
- Piętro: 3 z 4
- Typ zabudowy: blok
- Rok budowy: 1987
- Balkon i piwnica w cenie
- Winda: brak
- Stan: do wprowadzenia
Rozkład pomieszczeń
- Salon – 21,49 m²
- Kuchnia – 10,37 m²
- Sypialnia 1 – 14,23 m²
- Sypialnia 2 – 10,87 m²
- Sypialnia 3 – 12,12 m²
- Łazienka – 8,24 m²
- Przedpokój – 12,68 m²
- Balkon i piwnica
Funkcjonalny układ, osobna kuchnia i dużo światła dzięki oknom na trzy strony świata.
Kierunek okien
- Południe – salon
- Wschód – kuchnia
- Zachód – sypialnie
Parkowanie
Bezproblemowe – w okolicy znajduje się dużo ogólnodostępnych miejsc parkingowych.
Okolica
Cicha i zielona część Rembertowa – ponad 30% dzielnicy to lasy.
W pobliżu sklepy, szkoły, przedszkola, punkty usługowe, boiska i tereny spacerowe.
Odległości
- Autobus (143, 196, N24) – 2–3 min
- PKP Rembertów – 17 min pieszo / 5 min autobusem
- Sklepy i usługi – 5–10 min
- Szkoła – 5 min
- Przedszkole – 11 min
- Basen i boiska – 5 min
- Las – tuż obok
To mieszkanie daje przestrzeń, ciszę i komfort życia z szybkim dostępem do centrum Warszawy.
Idealne dla rodziny, osób pracujących zdalnie lub każdego, kto szuka spokoju bez rezygnacji z miejskich udogodnień.
Lokalizacja
W pobliżu
Park
- 409m - Źródło wody oligoceńskiej "Łazienki"
- 4616m - Park im. płk. Jana Szypowskiego „Leśnika”
- 5456m - Park. M. Schubert
Szkoła
- 537m - Moracz - Prywatna Szkoła Podstawowa im. Zofii i Jędrzeja Moraczewskich w Rembertowie
- 611m - Szkoła Podstawowa STO
- 657m - High School No LI them. Kosciuszko
Przychodnia
- 542m - Wszywka Alkoholowa Esperal i Detoks – Skuteczna Pomoc w Warszawie | Nasz Gabinet
- 654m - Poradnia Nocnej i Świątecznej Opieki Zdrowotnej Petra Medica
- 907m - Wojskowa Specjalistyczna Przychodnia Lekarska "SpecLek" SPZOZ
Przystanek
- 164m - Topograficzna 01
- 387m - Buławy 01
- 464m - Rembertów-Akademia 02



























