Mieszkanie na sprzedaż Warszawa Targówek, Zamiejska, 3 pokoje
1 / 19
Szczegóły
- Cena: 650 000 PLN
- Cena za m2: 10 851 PLN
- Powierzchnia: 59.9 m2
- Liczba pokoi: 3
- Piętro: 12
- Nr oferty: 1971319
Zapytaj o ofertę!
- Iwona Jóźwik
- 731 400 677
- i.jozwik@vivainvest.pl
Opis
Tylko za gotówkę !
Mam przyjemność przedstawić Państwu mieszkanie w doskonałej lokalizacji na Targówku Mieszkaniowym przy ulicy Zamiejskiej 17 przy Metrze Trocka.
Mieszkanie znajduje się na na 12 piętrze 13-piętrowego budynku z lat 80-tych.
Jasne i przestronne mieszkanie z dwustronną ekspozycją - okna skierowane na południowy wschód i północny zachód gwarantują naturalne światło przez cały dzień.
Lokal w stanie do remontu - doskonała okazja, by nadać mu indywidualny charakter i dostosować do własnych potrzeb.
Idealne zarówno dla rodziny, jak i pod inwestycję na wynajem.
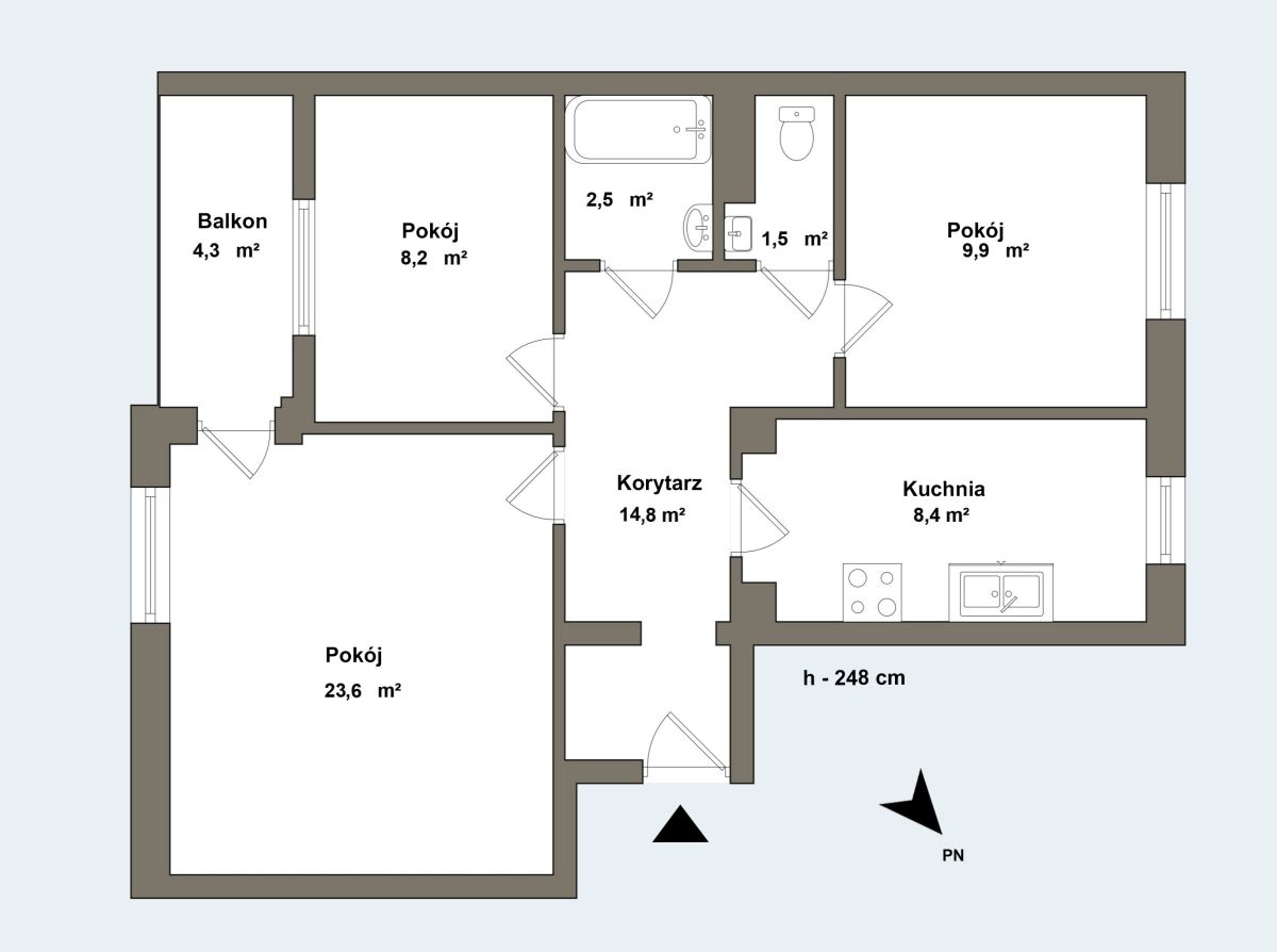
3-pokojowe mieszkanie o powierzchni 59,9 m² obejmuje:
Świetna komunikacja to jeden z kluczowych atutów tej lokalizacji:
Na terenie parku odwiedzający mogą skorzystać z ujęcia wody oligoceńskiej, boiska do koszykówki oraz wydzielonego toru do jazdy na wrotkach.
Dla najmłodszych przygotowano plac zabaw, dla dorosłych siłownię na świeżym powietrzu oraz wydzielony wybieg dla psów, co sprawia, że każdy znajdzie tu coś dla siebie.
Ciekawostka:
Tuż przy parku - w zabytkowym i monumentalnym budynku z lat 50. XX wieku ma siedzibę Teatr Rampa, który jest kulturalnym centrum Targówka i całej prawobrzeżnej Warszawy.
To teatr świadomie ex-centryczny, „pałac wśród bloków" Targówka.
Dzielnicy zawieszonej między centrum a przedmieściami, przeszłością a przyszłością, stolicą szklanych wieżowców i robotniczych blokowisk, połączonych od niedawna metrem.
Prezentuje autorskie spektakle musicalowe, komediowe i familijne mające na celu stworzenie pomostu-rampy do świata wyobraźni, niezbędnej, by zmierzyć się z rzeczywistością, ale także by móc od niej odpocząć.
Stan prawny:
Spółdzielcze własnościowe prawo do lokalu bez Księgi Wieczystej,
grunty nieuregulowane.
Robotnicza Spółdzielnia Mieszkaniowa " Praga " włada gruntem należącym do Miasta Stołecznego Warszawy, na którym stoi budynek, natomiast nie jest właścicielem gruntu ani użytkownikiem wieczystym.
Możliwość zakupu tylko za gotówkę.
Czynsz: 958 zł.
Serdecznie zapraszam na prezentację !
Mam przyjemność przedstawić Państwu mieszkanie w doskonałej lokalizacji na Targówku Mieszkaniowym przy ulicy Zamiejskiej 17 przy Metrze Trocka.
Mieszkanie znajduje się na na 12 piętrze 13-piętrowego budynku z lat 80-tych.
Jasne i przestronne mieszkanie z dwustronną ekspozycją - okna skierowane na południowy wschód i północny zachód gwarantują naturalne światło przez cały dzień.
Lokal w stanie do remontu - doskonała okazja, by nadać mu indywidualny charakter i dostosować do własnych potrzeb.
Idealne zarówno dla rodziny, jak i pod inwestycję na wynajem.
3-pokojowe mieszkanie o powierzchni 59,9 m² obejmuje:
- przestronny salon z wyjściem na loggię
- 2 mniejsze pokoje
- funkcjonalną kuchnię
- łazienkę
- toaletę
- przedpokój
Świetna komunikacja to jeden z kluczowych atutów tej lokalizacji:
- stacja metra Trocka - 50 m
- przystanek autobusowy - 100 m
- droga ekspresowa nr S 8 - 5 km (10 min)
- liczne punkty handlowo-usługowe
- Bazarek Trocka
- szkoły, przedszkola
- prężnie działający klub osiedlowy „Nasz Klub”
Na terenie parku odwiedzający mogą skorzystać z ujęcia wody oligoceńskiej, boiska do koszykówki oraz wydzielonego toru do jazdy na wrotkach.
Dla najmłodszych przygotowano plac zabaw, dla dorosłych siłownię na świeżym powietrzu oraz wydzielony wybieg dla psów, co sprawia, że każdy znajdzie tu coś dla siebie.
Ciekawostka:
Tuż przy parku - w zabytkowym i monumentalnym budynku z lat 50. XX wieku ma siedzibę Teatr Rampa, który jest kulturalnym centrum Targówka i całej prawobrzeżnej Warszawy.
To teatr świadomie ex-centryczny, „pałac wśród bloków" Targówka.
Dzielnicy zawieszonej między centrum a przedmieściami, przeszłością a przyszłością, stolicą szklanych wieżowców i robotniczych blokowisk, połączonych od niedawna metrem.
Prezentuje autorskie spektakle musicalowe, komediowe i familijne mające na celu stworzenie pomostu-rampy do świata wyobraźni, niezbędnej, by zmierzyć się z rzeczywistością, ale także by móc od niej odpocząć.
Stan prawny:
Spółdzielcze własnościowe prawo do lokalu bez Księgi Wieczystej,
grunty nieuregulowane.
Robotnicza Spółdzielnia Mieszkaniowa " Praga " włada gruntem należącym do Miasta Stołecznego Warszawy, na którym stoi budynek, natomiast nie jest właścicielem gruntu ani użytkownikiem wieczystym.
Możliwość zakupu tylko za gotówkę.
Czynsz: 958 zł.
Serdecznie zapraszam na prezentację !
Lokalizacja
W pobliżu
Park
- 559m - Park im. Stefana Wiecheckiego „Wiecha”
- 559m - Wybieg dla psów w Parku im. Stefana Wiecheckiego "Wiecha"
- 593m - Plac Tulipanów
Szkoła
- 271m - Szkoła Podstawowa nr 377 im. majora H. Dobrzańskiego "Hubala"
- 449m - Szkoła Podstawowa nr 114 z Oddziałami Integracyjnymi im. Jędrzeja Cierniaka
- 534m - Primary School No. 52
Przychodnia
- 4m - Przychodnia Vivamed
- 300m - Przychodnia
- 454m - Poradnia rodzinna Podstawowej Opieki Zdrowotnej Centrum Medycznego Instytutu Psychosomatycznego Sp. z o.o. Filia nr 1
Przystanek
- 538m - Bieżuńska 01
- 561m - Biezunska 02 (d.Trocka 02)
- 564m - Myszkowska 03





































