Mieszkanie na sprzedaż Warszawa Targówek, Płońska, 3 pokoje
1 / 20
Szczegóły
- Cena: 800 000 PLN
- Cena za m2: 12 444 PLN
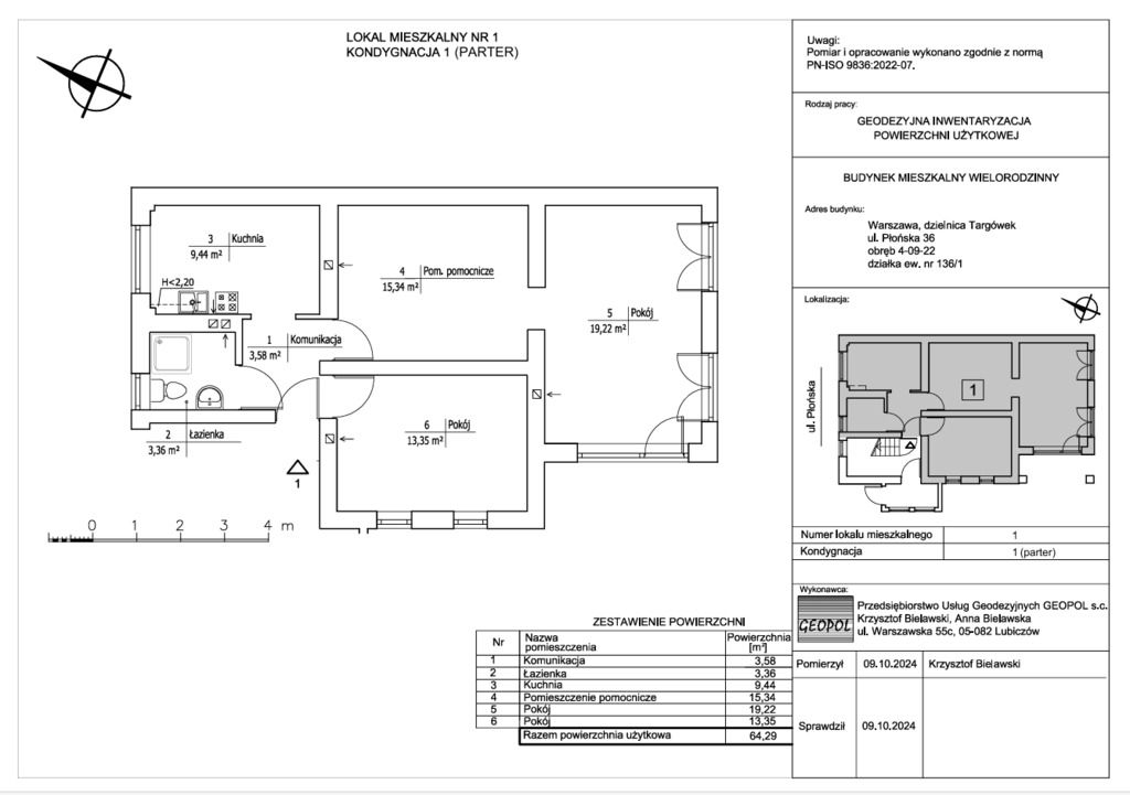
- Powierzchnia: 64.29 m2
- Liczba pokoi: 3
- Piętro: 0
- Nr oferty: 34964536078
Zapytaj o ofertę!
- VIVA INVEST sp.z o.o
- 696 666 999
- biuro@vivainvest.pl
Opis
3-pokojowe mieszkanie po generalnym remoncie 64,29 m² Warszawa Targówek, ul. Płońska – parter z tarasem, idealne do życia i pod usługi
Na sprzedaż jasne, świeżo wyremontowane 3-pokojowe mieszkanie o powierzchni 64,29 mkw, położone na parterze kameralnego, odnowionego budynku przy ul. Płońskiej na warszawskim Targówku. Tylko cztery mieszkania w całym budynku, cisza, prywatność i zero blokowiska.
To miejsce ma dwa przeznaczenia:
- idealne do zamieszkania,
- idealne pod działalność — fryzjer, kosmetolog, gabinet fizjo, biuro księgowe, projektowe, terapeutyczne, pracownia handmade, studio masażu, mini showroom, małe biuro nieruchomości, punkt porad prawnych.
Parter dwa osobne wyjścia duże witrynowe okna gotowa przestrzeń na Twój biznes.
Najważniejsze atuty:
- Generalny remont, pachnie nowością, wchodzisz i mieszkasz (lub startujesz z biznesem).
- Kameralny budynek po modernizacji, nowa elewacja, ocieplenie, wymienione instalacje, odświeżone części wspólne.
- Genialne doświetlenie, duże okna, ekspozycja południowo-wschodnia, słońce od rana do popołudnia w salonie, a w kuchni i łazience po południu.
-Taras z wyjście z dwóch stron, prywatny kącik na świeżym powietrzu, poranną kawę albo miejsce, gdzie przewietrzysz głowę po całym dniu.
- Pełne wyposażenie, kuchnia na wymiar, sprzęty AGD, szafy w zabudowie w dwóch pokojach.
- Łazienka z prysznicem w nowoczesnym stylu.
Miejsce postojowe w cenie 30 000 i duża komórka 6 mkw w cenie 30 000 – zakup obligatoryjny.
Układ i standard:
- 3 jasne pokoje – wygodne dla rodziny, pary lub pod wynajem.
- Oddzielna kuchnia z oknem – w zabudowie, funkcjonalna i pełna światła.
- Drzwi antywłamaniowe, videofon, nowe liczniki, wszystko gotowe do użytkowania.
Budynek z 1982 r. ale po generalnym remoncie, tu naprawdę czuć, że ktoś wykonał solidną robotę.
Lokalizacja:
Targówek, ul. Płońska, złoty środek między spokojem a świetnym dojazdem.
W pobliżu masz
- szkołę podstawową – 2 minuty pieszo,
- przedszkole – na tej samej ulicy,
-sklepy, Biedronkę, galerię Łodygowa, punkty usługowe,
-szybki wyjazd na główne trasy, autobusy, SKM dojedziesz do Dworca Wileńskiego w moment,
- Centrum Handlowe M1 – 7 minut samochodem,
- Las Bródnowski (1,5 km) – spacer, rower, bieganie, grill, klimat jakbyś wyrwał się z Warszawy, a wciąż jesteś w Warszawie.
Dla kogo jest to miejsce?
Dla osoby, która chce:
- mieszkać wygodnie i w jasnym, świeżym wnętrzu,
- połączyć dom i pracę w jednym miejscu,
- prowadzić działalność i szuka parteru z dobrym dostępem,
- korzystać z ciszy, zieleni i jednocześnie mieć Centrum w zasięgu ręki,
- ulokować kapitał w bezproblemowej nieruchomości.
Dodatkowe informacje:
- Miejsce postojowe naziemne – 30 000 zł (obowiązkowe)
- Komórka lokatorska 6 mkw – 30 000 zł (obowiązkowe)
Jeśli szukasz mieszkania, które daje Ci komfort, światło, prywatność i realny potencjał, to miejsce jest dla Ciebie.
A jeśli myślisz o biznesie, parter może okazać się idealnym wyborem.
Po więcej informacji zapraszam do kontaktu i na prezentację.
Na sprzedaż jasne, świeżo wyremontowane 3-pokojowe mieszkanie o powierzchni 64,29 mkw, położone na parterze kameralnego, odnowionego budynku przy ul. Płońskiej na warszawskim Targówku. Tylko cztery mieszkania w całym budynku, cisza, prywatność i zero blokowiska.
To miejsce ma dwa przeznaczenia:
- idealne do zamieszkania,
- idealne pod działalność — fryzjer, kosmetolog, gabinet fizjo, biuro księgowe, projektowe, terapeutyczne, pracownia handmade, studio masażu, mini showroom, małe biuro nieruchomości, punkt porad prawnych.
Parter dwa osobne wyjścia duże witrynowe okna gotowa przestrzeń na Twój biznes.
Najważniejsze atuty:
- Generalny remont, pachnie nowością, wchodzisz i mieszkasz (lub startujesz z biznesem).
- Kameralny budynek po modernizacji, nowa elewacja, ocieplenie, wymienione instalacje, odświeżone części wspólne.
- Genialne doświetlenie, duże okna, ekspozycja południowo-wschodnia, słońce od rana do popołudnia w salonie, a w kuchni i łazience po południu.
-Taras z wyjście z dwóch stron, prywatny kącik na świeżym powietrzu, poranną kawę albo miejsce, gdzie przewietrzysz głowę po całym dniu.
- Pełne wyposażenie, kuchnia na wymiar, sprzęty AGD, szafy w zabudowie w dwóch pokojach.
- Łazienka z prysznicem w nowoczesnym stylu.
Miejsce postojowe w cenie 30 000 i duża komórka 6 mkw w cenie 30 000 – zakup obligatoryjny.
Układ i standard:
- 3 jasne pokoje – wygodne dla rodziny, pary lub pod wynajem.
- Oddzielna kuchnia z oknem – w zabudowie, funkcjonalna i pełna światła.
- Drzwi antywłamaniowe, videofon, nowe liczniki, wszystko gotowe do użytkowania.
Budynek z 1982 r. ale po generalnym remoncie, tu naprawdę czuć, że ktoś wykonał solidną robotę.
Lokalizacja:
Targówek, ul. Płońska, złoty środek między spokojem a świetnym dojazdem.
W pobliżu masz
- szkołę podstawową – 2 minuty pieszo,
- przedszkole – na tej samej ulicy,
-sklepy, Biedronkę, galerię Łodygowa, punkty usługowe,
-szybki wyjazd na główne trasy, autobusy, SKM dojedziesz do Dworca Wileńskiego w moment,
- Centrum Handlowe M1 – 7 minut samochodem,
- Las Bródnowski (1,5 km) – spacer, rower, bieganie, grill, klimat jakbyś wyrwał się z Warszawy, a wciąż jesteś w Warszawie.
Dla kogo jest to miejsce?
Dla osoby, która chce:
- mieszkać wygodnie i w jasnym, świeżym wnętrzu,
- połączyć dom i pracę w jednym miejscu,
- prowadzić działalność i szuka parteru z dobrym dostępem,
- korzystać z ciszy, zieleni i jednocześnie mieć Centrum w zasięgu ręki,
- ulokować kapitał w bezproblemowej nieruchomości.
Dodatkowe informacje:
- Miejsce postojowe naziemne – 30 000 zł (obowiązkowe)
- Komórka lokatorska 6 mkw – 30 000 zł (obowiązkowe)
Jeśli szukasz mieszkania, które daje Ci komfort, światło, prywatność i realny potencjał, to miejsce jest dla Ciebie.
A jeśli myślisz o biznesie, parter może okazać się idealnym wyborem.
Po więcej informacji zapraszam do kontaktu i na prezentację.
Lokalizacja
W pobliżu
Park
- 704m - plac Trynopolski
- 1532m - Skwer Ekologiczny
- 1882m - Las Bródnowski
Szkoła
- 310m - Przedszkole nr 22 Integracyjne
- 446m - Training Centre Zacisze
- 555m - Primary School No. 84
Przychodnia
- 316m - Przychodnia Zacisze - Niepubliczny Zakład Opieki Zdrowotnej -Gabinet Zabiegowy Dla Dorosłych
- 328m - Medicers
- 1072m - Centrum Medyczne Wilno | Lekarze specjaliści
Przystanek
- 345m - Potulicka 01
- 382m - Diamentowa 02
- 412m - Młodzieńcza 03







































