Mieszkanie na sprzedaż Warszawa Ursynów, Jana Miklaszewskiego, 2 pokoje
1 / 14
Szczegóły
- Cena: 619 000 PLN
- Cena za m2: 12 977 PLN
- Powierzchnia: 47.7 m2
- Liczba pokoi: 2
- Piętro: 3
- Nr oferty: 1248059
Zapytaj o ofertę!
- Kamil Wilczak
- 731400908
- k.wilczak@vivainvest.pl
Opis
Prezentuję funkcjonalne, dwupokojowe mieszkanie o powierzchni 47,7 m², zlokalizowane w sercu Ursynowa.
Forma własności: Spółdzielcze własnościowe z założoną Księgą Wieczystą, ale jeszcze bez uregulowanego statusu gruntów.
Możliwość zakupu na Kredyt
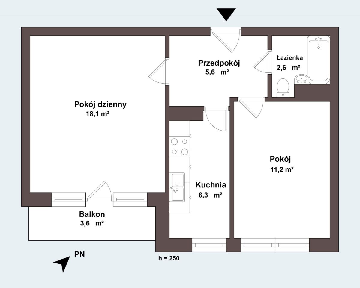
Szczegółowy rozkład pomieszczeń:
Mieszkanie charakteryzuje się logicznym i ustawny układem:
Pokój dzienny (18,1 m²): Przestronny salon z bezpośrednim wyjściem na balkon (3,6 m²). Duże przeszklenia gwarantują doskonałe doświetlenie.
Pokój / Sypialnia (11,2 m²): Ustawne pomieszczenie idealne na sypialnię główną która z powodzeniem pomieści również miejsce do pracy.
Kuchnia (6,3 m²): Oddzielna, widna kuchnia z oknem. Istnieje możliwość otwarcia jej na salon, tworząc nowoczesną strefę dzienną o powierzchni blisko 25 m².
Przedpokój (5,6 m²): Centralny punkt komunikacyjny z miejscem na pojemne szafy wnękowe.
Łazienka (2,6 m²): Kompaktowa i funkcjonalna, mieszcząca wannę (z możliwością przerobienia na duży prysznic) , WC oraz umywalkę.
Wysokość pomieszczeń: h = 250 cm.
Dlaczego warto zainwestować w tę nieruchomość?
1. Potencjał aranżacyjny i stan techniczny: Mieszkanie jest przygotowane do remontu i całkowicie opróżnione. Oszczędzasz czas i koszty związane z demontażem starych mebli. Dzięki południowo-wschodniej ekspozycji wnętrza są naturalnie doświetlone, co optycznie powiększa przestrzeń i buduje pozytywną energię od samego rana.
2. Ponadprzeciętna przestrzeń do przechowywania: Do mieszkania przynależą aż dwa dodatkowe pomieszczenia, co jest rzadkością.
Komórka lokatorska na piętrze: Idealna na podręczne rzeczy, wózki czy sezonową odzież.
(pomieszczenie na oddzielnej umowie ze spółdzielnią)
Piwnica: Bezpieczne miejsce na rowery, sprzęt sportowy lub opony.
3. Lokalizacja, która pracuje na wartość nieruchomości: Ursynów przy ul. Miklaszewskiego to „miasto w mieście”. Dojrzała infrastruktura sprawia, że wszystko jest pod ręką:
Komunikacja: Metro Imielin (10 min spacerem), Metro Stokłosy oraz szybki wjazd na trasę S2.
Rekreacja i Sport: Arena Ursynów (900 m), basen SGGW (1300 m) oraz liczne ścieżki rowerowe.
Gastronomiczne Zagłębie: W promieniu kilku minut znajdziesz kuchnie z całego świata (m.in. bałkańską, gruzińską, indyjską czy tajską).
Zakupy: Bliskość Centrum Ursynów (Auchan, OBI) oraz Galerii KEN Center.
Powierzchnia całkowita z ogłoszenia: 47,7 m² (obejmuje lokal oraz przynależności).
Forma własności: Spółdzielcze własnościowe z założoną Księgą Wieczystą, ale bez uregulowanego jeszcze statusu gruntów.
Czynsz: ok. 880 zł.
Dodatkowe wsparcie: Jeśli zakup tej nieruchomości wiąże się ze sprzedażą innego lokalu - przeprowadzimy Cię przez ten proces bezpiecznie i sprawnie. Zapewniamy również bezpłatną opiekę ekspertów kredytowych, którzy wynegocjują dla Ciebie najlepsze warunki finansowania.
Zapraszam na prezentację!
Kamil Wilczak E-mail: k.wilczak@vivainvest.pl
Lokalizacja
W pobliżu
Park
- 516m - Skwerek pod Urzędem
- 625m - Pieskowa górka przy Warchałowskiego
- 1012m - Park Linearny nad POW
Szkoła
- 149m - Prywatna Dwujęzyczna Szkoła Podstawowa Amadeus w Warszawie
- 183m - Szkoła Podstawowa nr 310 im. Michała Byliny
- 305m - Społeczne Liceum Ogólnokształcące nr 4 im. Batalionu AK Parasol
Przychodnia
- 329m - Health Center Ursynów. NZOZ
- 522m - Rodzinna Medical Center
- 558m - CMP Medical Center and Clinic Ursynow
Przystanek
- 330m - Centrum Onkologii 01
- 434m - Centrum Onkologii 04
- 449m - Metro Imielin 02



























