Mieszkanie na sprzedaż Warszawa Ursynów, 2 pokoje
1 / 13
Szczegóły
- Cena: 743 000 PLN
- Cena za m2: 13 992 PLN
- Powierzchnia: 53.1 m2
- Liczba pokoi: 2
- Piętro: 0
- Nr oferty: 34964532167
Zapytaj o ofertę!
- VIVA INVEST sp.z o.o
- 696 666 999
- biuro@vivainvest.pl
Opis
Na sprzedaż funkcjonalne, 2-pokojowe mieszkanie o przemyślanym, rozkładowym układzie, położone na parterze w 12 piętrowym budynku. Lokal znajduje się w spokojnej, zielonej okolicy z bardzo dobrą komunikacją.
Mieszkanie dwustronne, z ekspozycją okien na wschód i zachód.
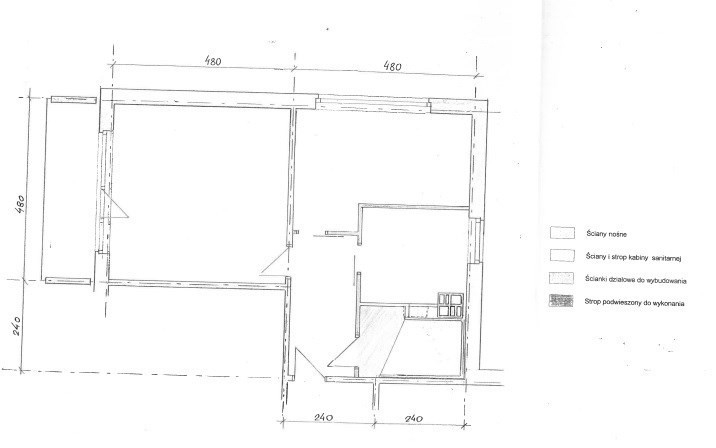
Prezentowana nieruchomość ma powierzchnię 53,10m2 i składa się z :
dwóch niezależnych pokoi,
oddzielnej, widnej kuchni,
łazienki z WC,
przedpokoju z pojemną szafą,
sypialni z szafą wnękową,
dużego balkonu z wyjściem na ogródek.
Do mieszkania przynależą aż dwie piwnice, co stanowi dodatkową przestrzeń do przechowywania.
Lokal przeznaczony jest do remontu co daje możliwość dowolnej aranżacji i dostosowania wnętrz do własnych potrzeb.
Budynek znajduje się w zadbanym otoczeniu , możliwość parkowania bezpośrednio przed blokiem.
Stan prawny:
Spółdzielcze własnościowe prawo do lokalu z możliwością założenia księgi wieczystej.
Nieruchomość znajduje się w doskonałej lokalizacji - blisko szkoła, przedszkole, pasaż handlowy, stacja metra.
To idealna propozycja dla rodziny, pary lub osób starszych szukających komfortowego mieszkania na parterze, z dobrym dostępem do infrastruktury i zieleni.
Mieszkanie dwustronne, z ekspozycją okien na wschód i zachód.
Prezentowana nieruchomość ma powierzchnię 53,10m2 i składa się z :
dwóch niezależnych pokoi,
oddzielnej, widnej kuchni,
łazienki z WC,
przedpokoju z pojemną szafą,
sypialni z szafą wnękową,
dużego balkonu z wyjściem na ogródek.
Do mieszkania przynależą aż dwie piwnice, co stanowi dodatkową przestrzeń do przechowywania.
Lokal przeznaczony jest do remontu co daje możliwość dowolnej aranżacji i dostosowania wnętrz do własnych potrzeb.
Budynek znajduje się w zadbanym otoczeniu , możliwość parkowania bezpośrednio przed blokiem.
Stan prawny:
Spółdzielcze własnościowe prawo do lokalu z możliwością założenia księgi wieczystej.
Nieruchomość znajduje się w doskonałej lokalizacji - blisko szkoła, przedszkole, pasaż handlowy, stacja metra.
To idealna propozycja dla rodziny, pary lub osób starszych szukających komfortowego mieszkania na parterze, z dobrym dostępem do infrastruktury i zieleni.
Lokalizacja
W pobliżu
Park
- 613m - Pope John Paul II Park
- 852m - Jezioro Imielińskie
- 1298m - Park Polskich Wynalazców
Szkoła
- 151m - Nauka Pływania Dla Dzieci Warszawa PAAR
- 179m - Primary School No. 322
- 212m - AleKorki - szkoła korepetycji online
Przychodnia
- 241m - Medikus. NZOZ
- 249m - Przychodnia Ursynowska - Lekarz rodzinny | Dermatolog
- 280m - Maxi-Wet. Veterinary clinic
Przystanek
- 240m - Ursynów Płd. 02
- 250m - Centrum Onkologii 01
- 288m - Ursynów Płd. 05

























