Mieszkanie na sprzedaż Warszawa Wilanów, Prymasa Augusta Hlonda, 1 pokoje
1 / 8
Szczegóły
- Cena: 790 000 PLN
- Cena za m2: 19 919 PLN
- Powierzchnia: 39.66 m2
- Liczba pokoi: 1
- Piętro: 3
- Nr oferty: 34964534375
Zapytaj o ofertę!
- VIVA INVEST sp.z o.o
- 696 666 999
- biuro@vivainvest.pl
Opis
PRZESTRONNE MIESZKANIE Z OPCJĄ WYDZIELENIA DWÓCH POKOI
Idealne dla singla lub pary | Doskonała lokalizacja | Zakup inwestycyjny | Możliwość aranżacji 2 pokoi I Piękne widoki
Idealne dla singla lub pary | Doskonała lokalizacja | Zakup inwestycyjny | Możliwość aranżacji 2 pokoi I Piękne widoki
******
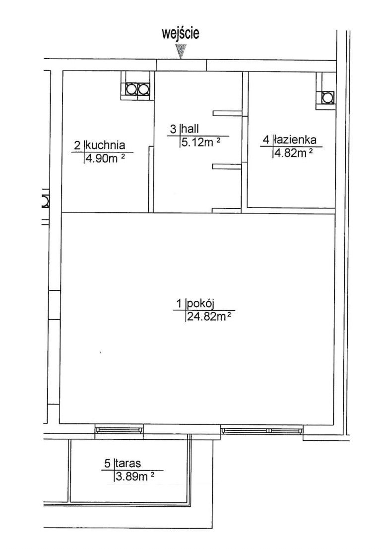
ROZKŁAD POMIESZCZEŃ:
* przestronny salon z dużymi oknami,
* balkon z ekspozycją południową, zapewniający dużo światła
* otwarta kuchnia
* łazienka z wanną
* hol.
STANDARD:
Mieszkanie o funkcjonalnym układzie, pierwotnie kawalerka, z możliwością wydzielenia dwóch osobnych pokoi - sypialni i pokoju dziennego. Wnętrze jest w dobrym stanie, z neutralną bazą wykończeniową, co daje dużą swobodę aranżacyjną.
Duże okna sprawiają, że mieszkanie jest świetnie doświetlone i pełne słońca, a balkon oferuje przyjemną przestrzeń z widokiem na zieleń i część Wilanowa, tworząc harmonijne połączenie komfortu i spokoju.
LOKALIZACJA:
Mieszkanie znajduje się w prestiżowej części Miasteczka Wilanów, w spokojnej i zielonej Ostoi Wilanów, która łączy kameralny charakter z wygodą miejskiego życia. W sąsiedztwie znajdują się udogodnienia na najwyższym poziomie: Royal Wilanów z eleganckimi butikami, restauracje, przytulne kawiarnie oraz centra fitness i siłownie, które pozwalają komfortowo łączyć życie zawodowe z aktywnym stylem życia. Ostoja Wilanów słynie z bezpieczeństwa, rozwiniętej infrastruktury i przyjaznej atmosfery, tworząc idealne miejsce zarówno dla rodzin, jak i osób szukających spokoju w otoczeniu zieleni.
DODATKOWE INFORMACJE:
* Możliwość zakupienia miejsca postojowego w garażu podziemnym dodatkowo płatne 60 000zł.
Zapraszam serdecznie na prezentacje.
ROZKŁAD POMIESZCZEŃ:
* przestronny salon z dużymi oknami,
* balkon z ekspozycją południową, zapewniający dużo światła
* otwarta kuchnia
* łazienka z wanną
* hol.
STANDARD:
Mieszkanie o funkcjonalnym układzie, pierwotnie kawalerka, z możliwością wydzielenia dwóch osobnych pokoi - sypialni i pokoju dziennego. Wnętrze jest w dobrym stanie, z neutralną bazą wykończeniową, co daje dużą swobodę aranżacyjną.
Duże okna sprawiają, że mieszkanie jest świetnie doświetlone i pełne słońca, a balkon oferuje przyjemną przestrzeń z widokiem na zieleń i część Wilanowa, tworząc harmonijne połączenie komfortu i spokoju.
LOKALIZACJA:
Mieszkanie znajduje się w prestiżowej części Miasteczka Wilanów, w spokojnej i zielonej Ostoi Wilanów, która łączy kameralny charakter z wygodą miejskiego życia. W sąsiedztwie znajdują się udogodnienia na najwyższym poziomie: Royal Wilanów z eleganckimi butikami, restauracje, przytulne kawiarnie oraz centra fitness i siłownie, które pozwalają komfortowo łączyć życie zawodowe z aktywnym stylem życia. Ostoja Wilanów słynie z bezpieczeństwa, rozwiniętej infrastruktury i przyjaznej atmosfery, tworząc idealne miejsce zarówno dla rodzin, jak i osób szukających spokoju w otoczeniu zieleni.
DODATKOWE INFORMACJE:
* Możliwość zakupienia miejsca postojowego w garażu podziemnym dodatkowo płatne 60 000zł.
Zapraszam serdecznie na prezentacje.
Lokalizacja
W pobliżu
Park
- 155m - Ławki przy fontannach
- 472m - Park Pokoleń
- 505m - Park Oś Królewska
Szkoła
- 350m - Akademeia High School
- 412m - Szkoła Podstawowa nr. 400
- 465m - Szkoła Podstawowa nr 358 w Warszawie
Przychodnia
- 362m - Medical Center Enel-Med
- 475m - Przychodnia Wilanów
- 506m - CITYMED Przychodnia Lekarzy Rodzinnych
Przystanek
- 278m - Świątynia Opatrzności Bożej 03
- 366m - Oś Królewska 01
- 524m - Oś Królewska 02















