Mieszkanie na sprzedaż Warszawa Wilanów, Kazachska, 2 pokoje
Szczegóły
- Cena: 1 399 000 PLN
- Cena za m2: 19 149 PLN
- Powierzchnia: 73.06 m2
- Liczba pokoi: 2
- Piętro: 2
- Nr oferty: 34964536026
Zapytaj o ofertę!
- VIVA INVEST sp.z o.o
- 696 666 999
- biuro@vivainvest.pl
Opis
Luksus, światło i design — Wilanów w najlepszym wydaniu!
- To miejsce, które łączy prestiż, wygodę i styl życia, którego oczekują wymagający mieszkańcy.
- Tu luksus spotyka design, a dopracowana przestrzeń daje poczucie życia na własnych zasadach.
Dla osób, które oczekują od mieszkania nie tylko metrażu, lecz komfortu klasy premium.
Dla tych, którzy cenią estetykę, światło, jakość i architekturę tworzoną z myślą o wygodzie.
Sprawdzi się doskonale dla rodziny z dzieckiem, ale także dla singla, singielki, pary czy inwestora szukającego bezpiecznej lokaty kapitału.
ADRES
ul. Kazachska 7
ATUTY
• Trójstronny, perfekcyjnie doświetlony apartament — naturalne światło przez cały dzień, rzadko spotykane w tej lokalizacji.
• Wysoki standard wykończenia i wyposażenia - w cenie, łącznie z zabudowami na wymiar i starannie dobranymi materiałami.
• Widok na zieleń i niską zabudowę, zapewniający poczucie przestrzeni i prywatności.
• Balkon, klimatyzacja, designerskie oświetlenie, eleganckie meble — tutaj każdy detal tworzy spójny efekt.
• Kameralny, zadbany apartamentowiec otoczony prywatnie aranżowaną zielenią.
DODATKOWY ATUT
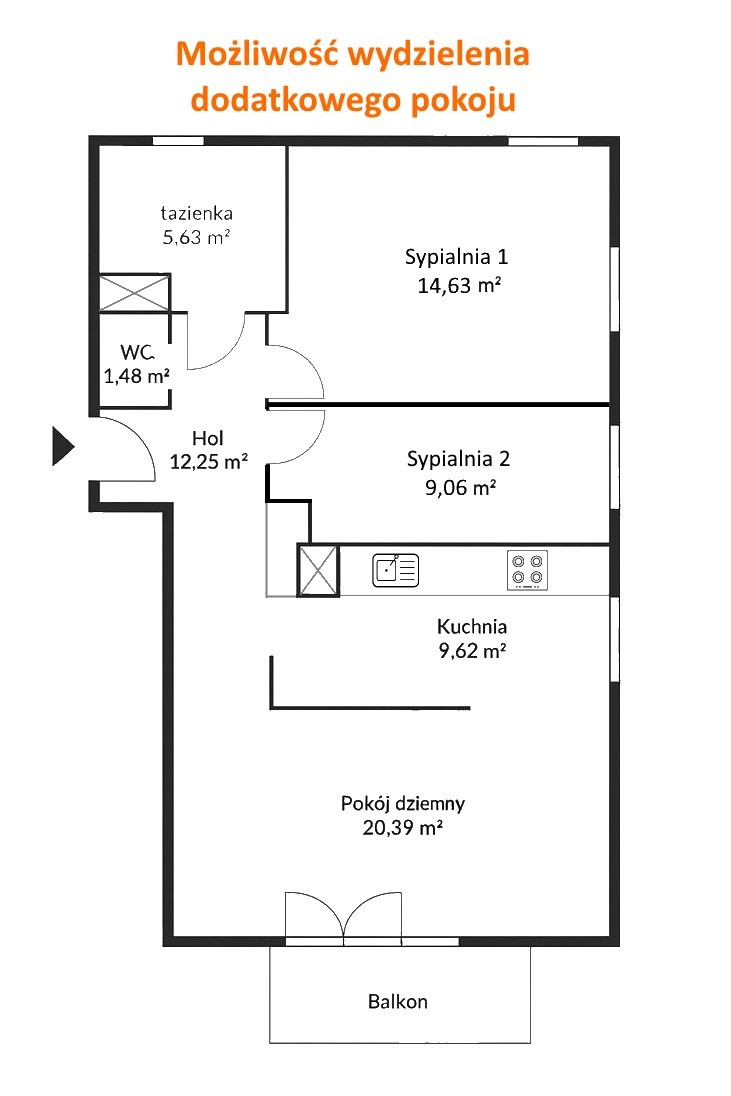
Mieszkanie można w prosty sposób przeplanować na 3-pokojowe, wydzielając dodatkową sypialnię gabinet lub pokój dziecięcy, zachowując funkcjonalność i wygodę przestrzeni.
NIERUCHOMOŚĆ
To 73,06 m² komfortu premium, zaprojektowanego tak, aby każdy centymetr odpowiadał współczesnym standardom luksusu.
Apartament znajduje się na 2. piętrze eleganckiego, trzypiętrowego budynku z windą, w samym sercu Miasteczka Wilanów.
Nie jest to kolejne mieszkanie „jakich wiele”.
To nieruchomość z charakterem, dopracowana jak projekt wnętrzarski.
Wnętrze zostało zaprojektowane w standardzie premium:
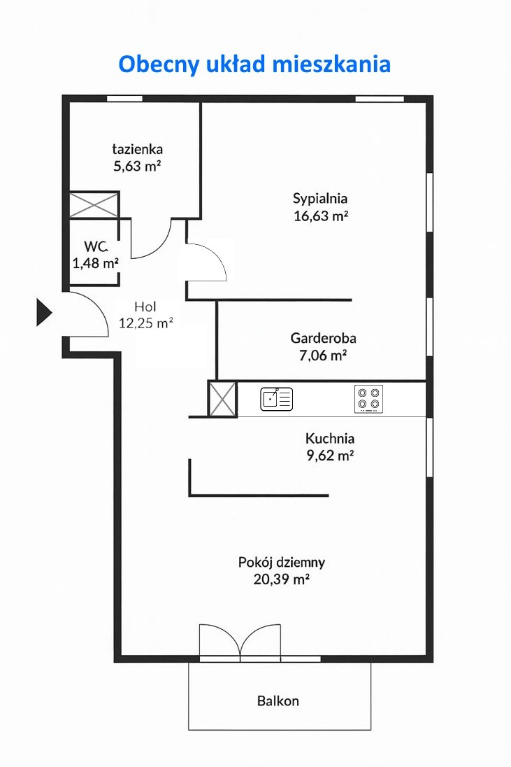
• Salon 20,39 m² - przestronny, jasny, z dużymi przeszkleniami, balkonem i klimatyzacją.
• Kuchnia 9,62 m² - częściowo otwarta, widna, idealna dla osób ceniących kulinarne przyjemności; ergonomiczna, z wysokiej klasy zabudową.
• Sypialnia + garderoba 23,69 m² - wyjątkowa przestrzeń, w której zabudowy na wymiar tworzą luksusową, hotelową wygodę.
Przestrzeń, która pozwala na elastyczną aranżację - podział na dwa pokoje
• Łazienka z oknem 5,63 m² - jasna, elegancka, wykończona materiałami o wysokiej trwałości i jakości.
• Oddzielna toaleta — dyskretny i bardzo praktyczny dodatek.
• Hol z licznymi zabudowami — pełna funkcjonalność, klasa i estetyka.
• Balkon — idealne miejsce na poranną kawę lub wieczorny odpoczynek.
Wnętrze utrzymane jest w idealnym stanie!
Budynek - komfort, bezpieczeństwo i prestiż!
• Nowoczesny apartamentowiec z 2017 roku
• Kameralne, ogrodzone i monitorowane osiedle z całodobową ochroną
• Starannie zaprojektowane tereny zielone, plac zabaw oraz przyjazna, spokojna atmosfera sprzyjająca rodzinom i codziennemu wypoczynkowi
LOKALIZACJA
Miasteczko Wilanów to jedna z najbardziej przyjaznych i bezpiecznych dzielnic Warszawy — miejsce, które rodziny wybierają świadomie. Wszystko masz tu pod ręką, a codzienne życie jest po prostu wygodne.
● Zielona, spokojna okolica z alejkami spacerowymi i placami zabaw tuż obok.
● Blisko natury - w weekend możesz wybrać się z dziećmi na spacer do ogrodów Pałacu w Wilanowie.
● Pełna infrastruktura w zasięgu kilku minut: sklepy, kawiarnie, restauracje, piekarnie, apteki, przychodnie, usługi.
● Żłobki, przedszkola i szkoły (również językowe i prywatne) — wszystko w pobliżu, bez długich dojazdów.
● Świetna komunikacja: autobusy, tramwaje, szybki dojazd do metra Wilanowska.
● Ścieżki rowerowe i tereny rekreacyjne - idealne na rodzinne wycieczki i aktywność z dziećmi.
● Tutaj naprawdę nie musisz codziennie wyjeżdżać do centrum — wszystko jest na miejscu.
Miasteczko Wilanów daje to, czego szuka większość rodzin: bezpieczeństwo, wygodę, zieleń i przyjazną społeczność.
Dojazd do Centrum - samochodem - ok. 20-25 minut
• Cena apartamentu: 1 399 000 zł
• Garaż podziemny: 45 000 zł
• Komórka lokatorska: 20 000 zł
Stan prawny: pełna własność, księga wieczysta
Jeśli szukasz apartamentu:
- pięknie wykończonego,
- w standardzie premium,
- gotowego do zamieszkania,
- doświetlonego, przestronnego i komfortowego,
- w jednej z najlepszych lokalizacji w Wilanowie — to właśnie go znalazłeś!
Zapraszamy na prezentacje.
Na żywo ten apartament robi jeszcze większe wrażenie!
Treść ogłoszenia nie stanowi oferty w rozumieniu art. 66 Kodeksu cywilnego. Informacje o nieruchomości mają charakter poglądowy i mogą podlegać aktualizacji.
Wskaźnik rocznego zapotrzebowania na energię użytkową (EU): 63.800 kWh/(m2 · rok).
Wskaźnik rocznego zapotrzebowania na energię końcową (EK): 104.600 kWh/(m2 · rok).
Wskaźnik rocznego zapotrzebowania na nieodnawialną energię pierwotną (EP): 87.700 kWh/(m2 · rok).
Jednostkowa wielkość emisji CO2 (E CO2): 0.035 t CO2/(m2 · rok).
Udział odnawialnych źródeł energii w rocznym zapotrzebowaniu na energię końcową (U OZE): 0.00 %.
Lokalizacja
W pobliżu
- 727m - Wilanów Park
- 831m - Rose Garden
- 854m - Park Oś Królewska
- 700m - Przedszkole i żłobek anglojęzyczny Warszawa Wilanów - Przedszkola Little Academy
- 748m - Szkoła Podstawowa nr 169 im. Orła Białego
- 921m - Szkoła Podstawowa nr 358 w Warszawie
- 491m - Nasz Gabinet - leczenie uzależnień
- 550m - Centrum Medicover
- 566m - Przychodnia Lekarska dla Dzieci NFZ
- 174m - Sarmacka 02
- 331m - Miasteczko Wilanów 03
- 359m - Vogla 02



































