Mieszkanie na sprzedaż Warszawa Wilanów, Sarmacka, 4 pokoje
1 / 17
Szczegóły
- Cena: 2 590 000 PLN
- Cena za m2: 22 058 PLN
- Powierzchnia: 117.42 m2
- Liczba pokoi: 4
- Piętro: 2
- Nr oferty: 34964536737
Zapytaj o ofertę!
- VIVA INVEST sp.z o.o
- 696 666 999
- biuro@vivainvest.pl
Opis
Przestronne mieszkanie w Wilanów One 117,4 m² 4 pokoje 2 loggie Klimatyzacja Sarmacka 19
Na sprzedaż przestronny, elegancki apartament w prestiżowej inwestycji Wilanów One, położonej przy ul. Sarmackiej 19 w Miasteczku Wilanów.
To doskonała propozycja dla rodzin, które cenią komfort, dużą przestrzeń, funkcjonalny układ i wysoką jakość wykończenia.
Mieszkanie jest gotowe do zamieszkania – wykończone materiałami wysokiej klasy, z centralną klimatyzacją i dużą ilością zabudów na wymiar.
Kluczowe atuty
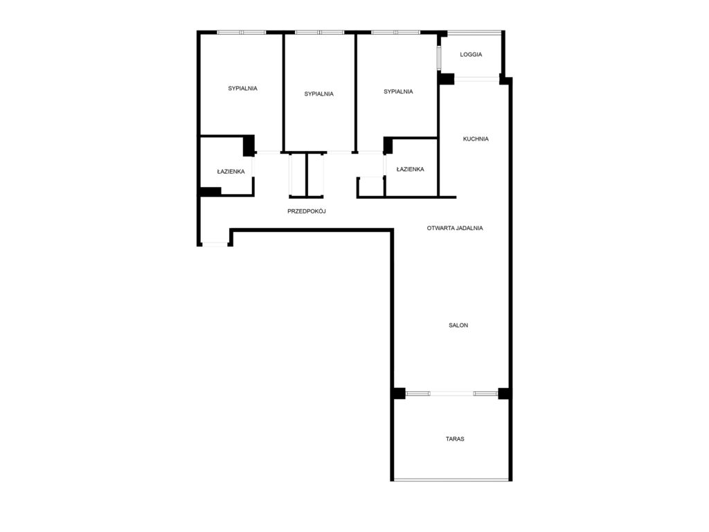
Mieszkanie ma powierzchnię 117,42 m², znajduje się na 2 piętrze 4-piętrowego budynku i składa się z:
Wykończenie obejmuje m.in.:
Do mieszkania przynależy miejsce w garażu podziemnym - dodatkowo płatne 50 000 PLN..
Inwestycja – Wilanów One
Wilanów One to zadbany apartamentowiec z 2008 roku, ceniony za:
Lokalizacja
Miasteczko Wilanów Jedna z najbardziej cenionych lokalizacji w Warszawie:
Spacious apartment in Wilanów One 117.4 m² 4 rooms 2 loggias Air conditioning Sarmacka 19
A spacious, elegant apartment for sale in the prestigious Wilanów One development, located at 19 Sarmacka Street in Miasteczko Wilanów.
This is an excellent option for families who value comfort, large space, a functional layout and high-quality finishes.
The apartment is ready to move in – finished with high-quality materials, with central air conditioning and a large number of custom-made built-ins.
Key advantages
The apartment has an area of 117.42 m², is located on the 2nd floor of a 4-story building and consists of:
Finishing includes:
The apartment includes a parking space in the underground garage - additional fee PLN 50,000.
Investment – Wilanów One
Wilanów One is a well-maintained apartment building from 2008, appreciated for:
Location
Miasteczko Wilanów One of the most valued locations in Warsaw:
Na sprzedaż przestronny, elegancki apartament w prestiżowej inwestycji Wilanów One, położonej przy ul. Sarmackiej 19 w Miasteczku Wilanów.
To doskonała propozycja dla rodzin, które cenią komfort, dużą przestrzeń, funkcjonalny układ i wysoką jakość wykończenia.
Mieszkanie jest gotowe do zamieszkania – wykończone materiałami wysokiej klasy, z centralną klimatyzacją i dużą ilością zabudów na wymiar.
Kluczowe atuty
- Duża powierzchnia 117,42 m² – idealne dla rodziny
- 4 pokoje: 3 sypialnie duży salon z kuchnią
- Wysokość pomieszczeń – 3 m (rzadkość w Miasteczku Wilanów)
- Ogromne drewniane okna od podłogi do sufitu — świetne doświetlenie
- Dwie loggie – dodatkowa przestrzeń na relaks
- Centralna klimatyzacja w całym mieszkaniu
- Wykończenie w wysokim standardzie
- Mnóstwo miejsca do przechowywania i praktycznych rozwiązań
- Miejsce postojowe w garażu podziemnym (50 000 zł)
Mieszkanie ma powierzchnię 117,42 m², znajduje się na 2 piętrze 4-piętrowego budynku i składa się z:
- przestronnego salonu połączonego z jasną, w pełni wyposażoną kuchnią
- 3 sypialni (wszystkie ustawne, idealne dla rodziny)
- 2 łazienek (z wanną i prysznicem)
- dużego holu z pojemnymi szafami
- 2 loggii — idealnych do stworzenia strefy relaksu
- pomieszczeń gospodarczych i dodatkowych zabudów
Wykończenie obejmuje m.in.:
- zabudowy stolarskie na wymiar,
- sprzęt AGD,
- wysokiej klasy materiały,
- centralną klimatyzację we wszystkich pomieszczeniach.
Do mieszkania przynależy miejsce w garażu podziemnym - dodatkowo płatne 50 000 PLN..
Inwestycja – Wilanów One
Wilanów One to zadbany apartamentowiec z 2008 roku, ceniony za:
- wysoki standard części wspólnych,
- monitoring, ochronę i teren zamknięty,
- eleganckie klatki schodowe,
- cichobieżne windy,
- kameralny charakter.
Lokalizacja
Miasteczko Wilanów Jedna z najbardziej cenionych lokalizacji w Warszawie:
- sklepy, restauracje, kawiarnie – kilka minut spacerem
- liczne szkoły — w tym międzynarodowe
- szybki dojazd do centrum, Sadyby i Ursynowa
- blisko tereny zielone i rekreacyjne
- świetna komunikacja autobusowa
Spacious apartment in Wilanów One 117.4 m² 4 rooms 2 loggias Air conditioning Sarmacka 19
A spacious, elegant apartment for sale in the prestigious Wilanów One development, located at 19 Sarmacka Street in Miasteczko Wilanów.
This is an excellent option for families who value comfort, large space, a functional layout and high-quality finishes.
The apartment is ready to move in – finished with high-quality materials, with central air conditioning and a large number of custom-made built-ins.
Key advantages
- Large area of 117.42 m² – perfect for a family
- 4 rooms: 3 bedrooms large living room with kitchen
- Room height – 3 m (a rarity in Miasteczko Wilanów)
- Huge wooden windows from floor to ceiling - great lighting
- Two loggias – additional space for relaxation
- Central air conditioning throughout the apartment
- Finished to a high standard
- Lots of storage space and practical solutions
- Parking space in the underground garage (PLN 50,000)
The apartment has an area of 117.42 m², is located on the 2nd floor of a 4-story building and consists of:
- a spacious living room connected to a bright, fully equipped kitchen
- 3 bedrooms (all well-arranged, perfect for a family)
- 2 bathrooms (with bathtub and shower)
- a large hall with spacious wardrobes
- 2 loggias - ideal for creating a relaxation zone
- utility rooms and additional buildings
Finishing includes:
- custom-made carpentry,
- household appliances,
- high-quality materials,
- central air conditioning in all rooms.
The apartment includes a parking space in the underground garage - additional fee PLN 50,000.
Investment – Wilanów One
Wilanów One is a well-maintained apartment building from 2008, appreciated for:
- high standard of common areas,
- monitoring, security and closed area,
- elegant staircases,
- silent elevators,
- intimate character.
Location
Miasteczko Wilanów One of the most valued locations in Warsaw:
- shops, restaurants, cafes – a few minutes' walk
- numerous schools, including international ones
- quick access to the city center, Sadyba and Ursynów
- close to green and recreational areas
- great bus service
Lokalizacja
W pobliżu
Park
- 1252m - Wege Park
- 1331m - Park Oś Królewska
- 1423m - Wilanów Park
Szkoła
- 370m - Masters & More - Szkoła Języków Obcych Warszawa Wilanów Branickiego
- 701m - Szkoła Podstawowa nr 358 w Warszawie
- 872m - Akademeia High School
Przychodnia
- 1129m - Nasz Gabinet - leczenie uzależnień
- 1249m - Onkolmed Medical Clinic of Oncology Specialization
- 1279m - Przychodnia Lekarska dla Dzieci NFZ
Przystanek
- 403m - Miasteczko Wilanów 04
- 424m - Św. U. Ledóchowskiej 01
- 451m - Przystanek autobusowy Św. Urszuli Ledóchowskiej

































