Mieszkanie na sprzedaż Warszawa Wola, Jana Kazimierza, 3 pokoje
1 / 20
Szczegóły
- Cena: 1 355 000 PLN
- Cena za m2: 19 985 PLN
- Powierzchnia: 67.8 m2
- Liczba pokoi: 3
- Piętro: 1
- Nr oferty: 34964539734
Zapytaj o ofertę!
- VIVA INVEST sp.z o.o
- 696 666 999
- biuro@vivainvest.pl
Opis
INFORMACJE OGÓLNE:
Lokalizacja: Warszawa, Wola, ul. Jana Kazimierza 64
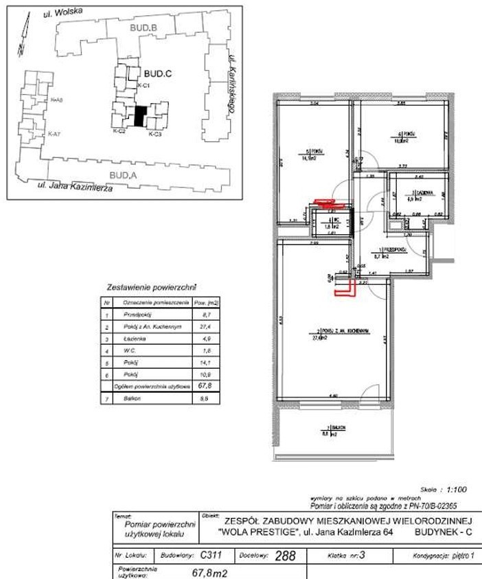
Metraż: 67,8
Piętro: 1/5
Rok budowy: 2010
Winda: Tak
Stan prawny: Lokal stanowiący odrębną własność
Cena: 1.355.322 zł
Czynsz: 980zł ( plus opłata za energie elektryczną - około 180zł - 4 osoby)
Garaż: 1 miejsce postojowe w garażu podziemnym - dodatkowo płatne 55.000zł
Zachęcamy do obejrzenia mieszkania za pomocą spaceru wirtualnego w sekcji GALERIA
OPIS MIESZKANIA:
Na sprzedaż przestronne, częściowo umeblowane, gotowe do zamieszkania, 3 pokojowe mieszkanie położone przy ulicy Jana Kazimierza 64 na Warszawskiej Woli.
Lokal o powierzchni 67,8 metrów kwadratowych znajduje się na 1 piętrze 5-cio piętrowego budynku mieszkalnego wielorodzinnego.
W skład mieszkania wchodzi:
- przestronny, jasny salon z wyjściem na duży balkon 8,8mkw z ekspozycją na południe
- aneks kuchenny z wyspą oraz zabudową meblową na wymiar
- dwie oddzielne sypialnie (jedna z garderobą). Obydwie z ekspozycją północną
- łazienka z prysznicem
- przestronny hol
- miejsce postojowe w garażu podziemnym (dodatkowo płatne 55.000 zł)
Mieszkanie zostało wykończone z wysokiej jakości materiałów, urządzone funkcjonalnie z dbałością o detale. Meble w kuchni, przedpokoju, łazience, sypialni oraz garderobie zostały wykonane według indywidulanych projektów.
W oknach zamontowano praktyczne, dwuwarstwowe rolety rzymskie (firana + zasłona). Mieszkanie wyposażone jest w sprzęt AGD (zmywarka, lodówka, piekarnik, płyta indukcyjna, okap, pralka).
Podłogi zostały wykonane z paneli (w sypialniach i salonie) oraz terakoty (kuchnia, łazienka i przedpokój).
Obecnie mieszkanie posiada pojemną garderobę (1,8 m²), jednak dzięki zachowaniu wszystkich przyłączy sanitarnych, można ją z łatwością przywrócić do pierwotnej funkcji osobnej toalety (WC), zgodnie z załączonym planem deweloperskim. Wysokość pomieszczeń to 268 cm.
Lokal jest częściowo umeblowany, wyposażony w AGD i gotowy do zamieszkania od zaraz.
OPIS LOKALIZACJI:
Ulica Jana Kazimierza znajduje się w dynamicznie rozwijającej się części Warszawy - dzielnicy Wola, blisko Ronda Daszyńskiego oraz centrum. W okolicy funkcjonuje dobrze rozwinięta sieć komunikacyjna z dostępem do autobusów i tramwajów. W sąsiedztwie znajduje się wiele placówek edukacyjnych oraz placówki opieki zdrowotnej.
Liczne sklepy, restauracje i lokale usługowe są dodatkowym atutem tej lokalizacji.
Centrum handlowe Fort Wola oddalone o 3 min pieszo.
W bliskiej odległości znajdują się tereny rekreacyjne: parki, place zabaw i obiekty sportowe: boiska, kluby fitness.
Zaledwie kilka minut spacerem dzieli nas od Parku Powstańców Warszawy oraz urokliwego Parku Edwarda Szymańskiego. Park Moczydło z zewnętrznymi letnimi basenami oddalony jest o 15 min.
Osiedle na którym znajduję się nieruchomość jest zamknięte i monitorowane całodobowo. Na patio znajdują się liczne nasadzenia zieleni.
W pobliżu przystanek autobusowy oraz tramwajowy. Do metra Rondo Daszyńskiego 7 przystanków tramwajem (dojazd w około 10 min)
*Nowoczesna szkoła podstawowa - 200m
*Przedszkole, żłobek 200m
*Piekarnie (Oskroba, Gromulski ) - 100m
*Apteka - 120m
*Biedronka - 50m
*Rossmann - 80m
*Centrum handlowe Fort Wola - 300m
*Plac zabaw na terenie osiedla
Zapraszam do kontaktu oraz do obejrzenia nieruchomości.
Adrian Wojciechowski
tel: 504-59-29-59
Jeśli planujesz zakup nieruchomości przy pomocy kredytu, nasz broker finansowy bez kosztowo potwierdzi Twoją zdolność oraz sprawdzi, w którym banku otrzymasz najkorzystniejszą ofertę. Współpracujemy również z kancelarią prawną, która w ramach pośrednictwa na Twoją prośbę potwierdzi stan prawny nieruchomości a my zadba o bezpieczny przebieg transakcji od początku do końca, począwszy od przeniesienia własności, spisania protokołów zdawczo-odbiorczych a na przekazaniu kluczy kończąc.
Niniejsze ogłoszenie jest wyłącznie informacją i nie stanowi oferty w rozumieniu art. 66 § 1 Kodeksu Cywilnego. Dokładamy wszelkich starań, aby informacje przedstawione w naszych ofertach były aktualne i rzetelne. Informacje zawarte w ofercie uzyskano na podstawie oświadczeń sprzedających. Załączony plan nieruchomości jest poglądowy.
Agencja PRAGA HOME oraz EKSPERT LOKALNY są objęte obowiązkiem ubezpieczenia odpowiedzialności cywilnej zawodowej. Posiadamy OC zgodne z Rozporządzeniem Ministra Finansów z dn. 26.04.2019 r. w sprawie obowiązkowego ubezpieczenia odpowiedzialności cywilnej pośrednika w obrocie nieruchomościami (Dz. U. z 2019 r., poz. 804).
Lokalizacja: Warszawa, Wola, ul. Jana Kazimierza 64
Metraż: 67,8
Piętro: 1/5
Rok budowy: 2010
Winda: Tak
Stan prawny: Lokal stanowiący odrębną własność
Cena: 1.355.322 zł
Czynsz: 980zł ( plus opłata za energie elektryczną - około 180zł - 4 osoby)
Garaż: 1 miejsce postojowe w garażu podziemnym - dodatkowo płatne 55.000zł
Zachęcamy do obejrzenia mieszkania za pomocą spaceru wirtualnego w sekcji GALERIA
OPIS MIESZKANIA:
Na sprzedaż przestronne, częściowo umeblowane, gotowe do zamieszkania, 3 pokojowe mieszkanie położone przy ulicy Jana Kazimierza 64 na Warszawskiej Woli.
Lokal o powierzchni 67,8 metrów kwadratowych znajduje się na 1 piętrze 5-cio piętrowego budynku mieszkalnego wielorodzinnego.
W skład mieszkania wchodzi:
- przestronny, jasny salon z wyjściem na duży balkon 8,8mkw z ekspozycją na południe
- aneks kuchenny z wyspą oraz zabudową meblową na wymiar
- dwie oddzielne sypialnie (jedna z garderobą). Obydwie z ekspozycją północną
- łazienka z prysznicem
- przestronny hol
- miejsce postojowe w garażu podziemnym (dodatkowo płatne 55.000 zł)
Mieszkanie zostało wykończone z wysokiej jakości materiałów, urządzone funkcjonalnie z dbałością o detale. Meble w kuchni, przedpokoju, łazience, sypialni oraz garderobie zostały wykonane według indywidulanych projektów.
W oknach zamontowano praktyczne, dwuwarstwowe rolety rzymskie (firana + zasłona). Mieszkanie wyposażone jest w sprzęt AGD (zmywarka, lodówka, piekarnik, płyta indukcyjna, okap, pralka).
Podłogi zostały wykonane z paneli (w sypialniach i salonie) oraz terakoty (kuchnia, łazienka i przedpokój).
Obecnie mieszkanie posiada pojemną garderobę (1,8 m²), jednak dzięki zachowaniu wszystkich przyłączy sanitarnych, można ją z łatwością przywrócić do pierwotnej funkcji osobnej toalety (WC), zgodnie z załączonym planem deweloperskim. Wysokość pomieszczeń to 268 cm.
Lokal jest częściowo umeblowany, wyposażony w AGD i gotowy do zamieszkania od zaraz.
OPIS LOKALIZACJI:
Ulica Jana Kazimierza znajduje się w dynamicznie rozwijającej się części Warszawy - dzielnicy Wola, blisko Ronda Daszyńskiego oraz centrum. W okolicy funkcjonuje dobrze rozwinięta sieć komunikacyjna z dostępem do autobusów i tramwajów. W sąsiedztwie znajduje się wiele placówek edukacyjnych oraz placówki opieki zdrowotnej.
Liczne sklepy, restauracje i lokale usługowe są dodatkowym atutem tej lokalizacji.
Centrum handlowe Fort Wola oddalone o 3 min pieszo.
W bliskiej odległości znajdują się tereny rekreacyjne: parki, place zabaw i obiekty sportowe: boiska, kluby fitness.
Zaledwie kilka minut spacerem dzieli nas od Parku Powstańców Warszawy oraz urokliwego Parku Edwarda Szymańskiego. Park Moczydło z zewnętrznymi letnimi basenami oddalony jest o 15 min.
Osiedle na którym znajduję się nieruchomość jest zamknięte i monitorowane całodobowo. Na patio znajdują się liczne nasadzenia zieleni.
W pobliżu przystanek autobusowy oraz tramwajowy. Do metra Rondo Daszyńskiego 7 przystanków tramwajem (dojazd w około 10 min)
*Nowoczesna szkoła podstawowa - 200m
*Przedszkole, żłobek 200m
*Piekarnie (Oskroba, Gromulski ) - 100m
*Apteka - 120m
*Biedronka - 50m
*Rossmann - 80m
*Centrum handlowe Fort Wola - 300m
*Plac zabaw na terenie osiedla
Zapraszam do kontaktu oraz do obejrzenia nieruchomości.
Adrian Wojciechowski
tel: 504-59-29-59
Jeśli planujesz zakup nieruchomości przy pomocy kredytu, nasz broker finansowy bez kosztowo potwierdzi Twoją zdolność oraz sprawdzi, w którym banku otrzymasz najkorzystniejszą ofertę. Współpracujemy również z kancelarią prawną, która w ramach pośrednictwa na Twoją prośbę potwierdzi stan prawny nieruchomości a my zadba o bezpieczny przebieg transakcji od początku do końca, począwszy od przeniesienia własności, spisania protokołów zdawczo-odbiorczych a na przekazaniu kluczy kończąc.
Niniejsze ogłoszenie jest wyłącznie informacją i nie stanowi oferty w rozumieniu art. 66 § 1 Kodeksu Cywilnego. Dokładamy wszelkich starań, aby informacje przedstawione w naszych ofertach były aktualne i rzetelne. Informacje zawarte w ofercie uzyskano na podstawie oświadczeń sprzedających. Załączony plan nieruchomości jest poglądowy.
Agencja PRAGA HOME oraz EKSPERT LOKALNY są objęte obowiązkiem ubezpieczenia odpowiedzialności cywilnej zawodowej. Posiadamy OC zgodne z Rozporządzeniem Ministra Finansów z dn. 26.04.2019 r. w sprawie obowiązkowego ubezpieczenia odpowiedzialności cywilnej pośrednika w obrocie nieruchomościami (Dz. U. z 2019 r., poz. 804).
Lokalizacja
W pobliżu
Park
- 630m - Warsaw Insurgents Park
- 683m - P+R Połczyńska
- 985m - Park
Szkoła
- 200m - Szkoła Matmy
- 237m - Szkoła Podstawowa nr 403
- 497m - Szkoła języka angielskiego Community College
Przychodnia
- 0m - Medical Center CMP Wola | Clinic
- 163m - Przychodnia Weterynaryjna Odolany
- 852m - Centrum Medyczne Profil-Med
Przystanek
- 168m - Przystanek Sushi Wola
- 208m - Fort Wola 01
- 285m - Fort Wola 03







































