Lokal usługowy na wynajem Warszawa Mokotów, Domaniewska, 9 pokoje
1 / 17
Szczegóły
- Cena: 13 000 PLN
- Cena za m2: 76 PLN
- Powierzchnia: 171 m2
- Liczba pokoi: 9
- Piętro: 0
- Nr oferty: 34964531253
Zapytaj o ofertę!
- VIVA INVEST sp.z o.o
- 696 666 999
- biuro@vivainvest.pl
Opis
PRZESTRONNY LOKAL UŻYTKOWY Z DUŻYM POTENCJAŁEM ARANŻACYJNYM W PRESTIŻOWEJ LOKALIZACJI NA MOKOTOWIE - DOMANIEWSKA 22A
Możliwość wykonania antresoli | Miejsca postojowe przed lokalem ogólnodostępne | Dobra komunikacja | Świetnie skomunikowana lokalizacja
*****
ROZKŁAD POMIESZCZEŃ:
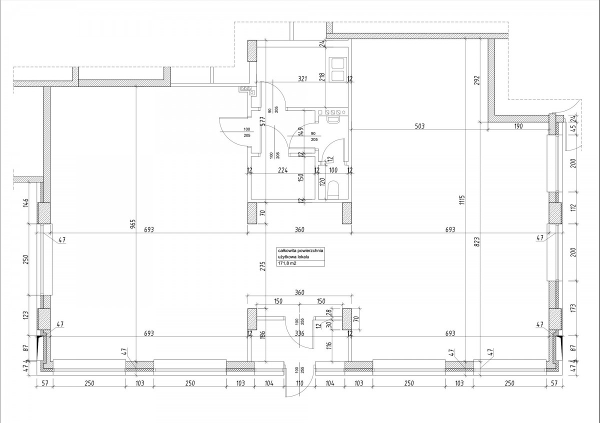
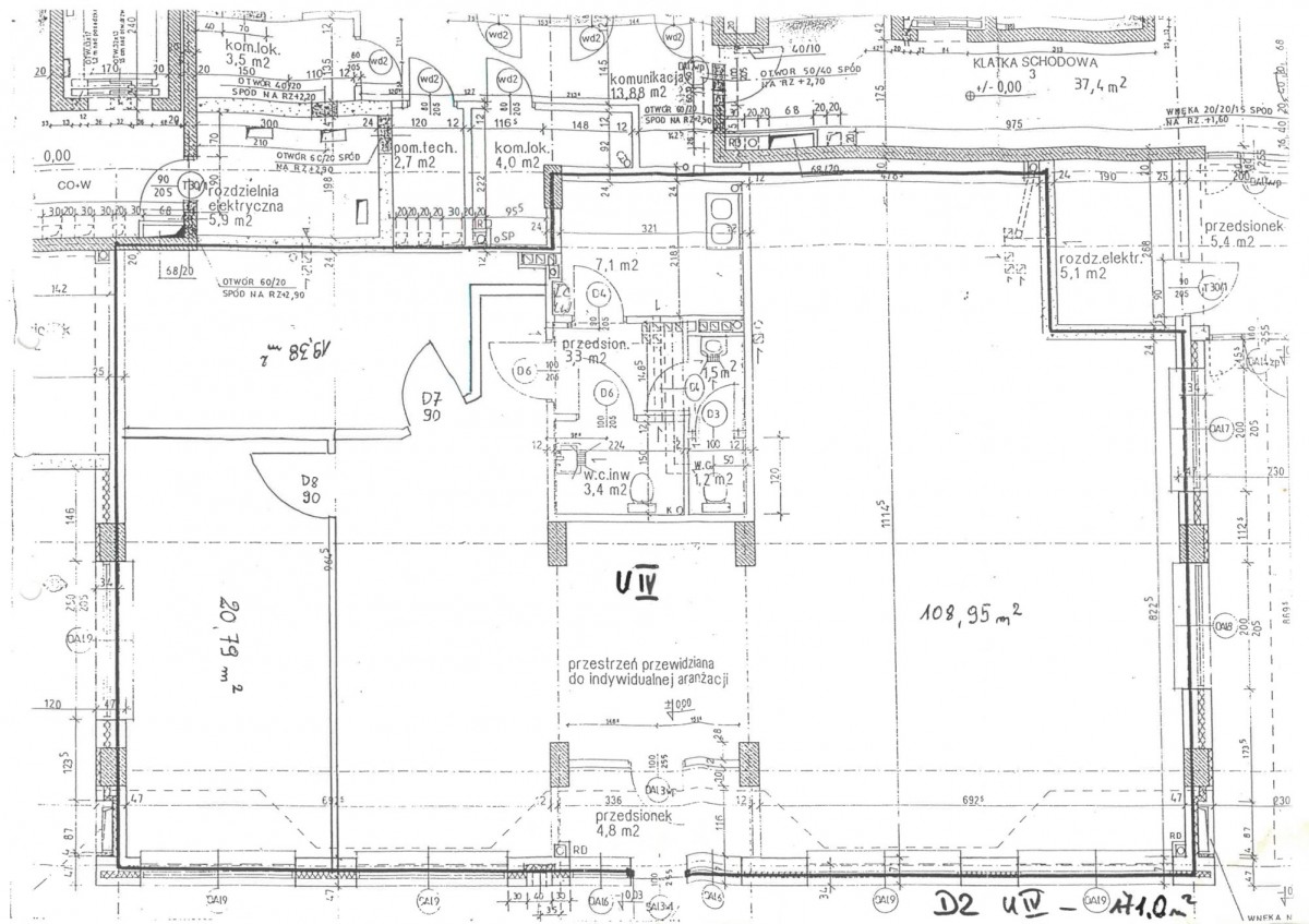
Lokal o powierzchni 171 m2, aktualnie podzielony na:
* Przestronny open space o powierzchni 108,95 m2 z ekspozycją południową,
* pokój biurowy / gabinet o powierzchni 20,79 m2 z oknem,
* magazyn o powierzchni 19,38 m2,
* przedsionek o powierzchni 4,8 m2,
* kuchnia o powierzchni 7,1 m2,
* dwie łazienki o powierzchni 3 m2 każda,
* przedsionek socjalny o powierzchni 3,3 m2.
STANDARD:
Przestronny lokal z dużymi możliwościami własnej adaptacji.
Wysokość lokalu 3,9 m - możliwość stworzenia antresoli i zwiększenia powierzchni użytkowej.
Duże okna z ekspozycją południową zapewniają doskonałe doświetlenie.
LOKALIZACJA:
Mokotów, Ksawerów - dynamicznie rozwijająca się dzielnica biznesowa Warszawy.
W bezpośrednim sąsiedztwie liczne biurowce, restauracje, kawiarnie, sklepy i punkty usługowe.
Doskonała komunikacja: bliskość przystanków autobusowych, tramwajowych oraz stacji metra Wilanowska.
Szybki dojazd do centrum i lotniska Chopina.
POMYSŁY NA WYKORZYSTANIE LOKALU:
Biuro: Przestronny open space idealny na siedzibę firmy, z możliwością wydzielenia dodatkowych pomieszczeń biurowych.
Gastronomia: Duża powierzchnia na której można wydzielić cześć handlową i restauracyjną.
Showroom: Doskonała lokalizacja i duże witryny zachęcają do prezentacji produktów i usług.
Klinika/Gabinet: Możliwość dostosowania przestrzeni do potrzeb medycznych lub kosmetycznych.
Studio Fitness/Jogi: Wysokie pomieszczenie idealne do zajęć sportowych.
Sklep/Punkt Usługowy: Duży potencjał ze względu na lokalizację i brak konkurencji w niektórych branżach.
Coworking: Stwórz przestrzeń do pracy dla freelancerów i małych firm.
INFORMACJE DODATKOWE:
* Przed lokalem ogólnodostępny parking.
* Możliwość zakupu miejsca parkingowego w garażu podziemnym (dodatkowo płatne).
* Lokal idealny dla inwestora lub firmy poszukującej prestiżowej lokalizacji.
Serdecznie zapraszam na prezentację!
Możliwość wykonania antresoli | Miejsca postojowe przed lokalem ogólnodostępne | Dobra komunikacja | Świetnie skomunikowana lokalizacja
*****
ROZKŁAD POMIESZCZEŃ:
Lokal o powierzchni 171 m2, aktualnie podzielony na:
* Przestronny open space o powierzchni 108,95 m2 z ekspozycją południową,
* pokój biurowy / gabinet o powierzchni 20,79 m2 z oknem,
* magazyn o powierzchni 19,38 m2,
* przedsionek o powierzchni 4,8 m2,
* kuchnia o powierzchni 7,1 m2,
* dwie łazienki o powierzchni 3 m2 każda,
* przedsionek socjalny o powierzchni 3,3 m2.
STANDARD:
Przestronny lokal z dużymi możliwościami własnej adaptacji.
Wysokość lokalu 3,9 m - możliwość stworzenia antresoli i zwiększenia powierzchni użytkowej.
Duże okna z ekspozycją południową zapewniają doskonałe doświetlenie.
LOKALIZACJA:
Mokotów, Ksawerów - dynamicznie rozwijająca się dzielnica biznesowa Warszawy.
W bezpośrednim sąsiedztwie liczne biurowce, restauracje, kawiarnie, sklepy i punkty usługowe.
Doskonała komunikacja: bliskość przystanków autobusowych, tramwajowych oraz stacji metra Wilanowska.
Szybki dojazd do centrum i lotniska Chopina.
POMYSŁY NA WYKORZYSTANIE LOKALU:
Biuro: Przestronny open space idealny na siedzibę firmy, z możliwością wydzielenia dodatkowych pomieszczeń biurowych.
Gastronomia: Duża powierzchnia na której można wydzielić cześć handlową i restauracyjną.
Showroom: Doskonała lokalizacja i duże witryny zachęcają do prezentacji produktów i usług.
Klinika/Gabinet: Możliwość dostosowania przestrzeni do potrzeb medycznych lub kosmetycznych.
Studio Fitness/Jogi: Wysokie pomieszczenie idealne do zajęć sportowych.
Sklep/Punkt Usługowy: Duży potencjał ze względu na lokalizację i brak konkurencji w niektórych branżach.
Coworking: Stwórz przestrzeń do pracy dla freelancerów i małych firm.
INFORMACJE DODATKOWE:
* Przed lokalem ogólnodostępny parking.
* Możliwość zakupu miejsca parkingowego w garażu podziemnym (dodatkowo płatne).
* Lokal idealny dla inwestora lub firmy poszukującej prestiżowej lokalizacji.
Serdecznie zapraszam na prezentację!
Lokalizacja
W pobliżu
Park
- 792m - Park Granat
- 935m - Królikarnia Sculpture Park
- 1103m - Platinium Business Park Pond
Szkoła
- 140m - Niepubliczna Szkoła Podstawowa nr 97
- 388m - Szkoła Psychoterapii Gestalt
- 422m - Szkoła Podstawowa nr 146 im. Janusza Korczaka
Przychodnia
- 355m - Veterinary Clinic ELWET 24
- 402m - Nzoz Prywatna Przychodnia Lekarska
- 551m - Centrum Medyczne Woronicza
Przystanek
- 123m - Modzelewskiego 02
- 200m - Modzelewskiego 03
- 212m - Osiedle Domaniewska 04