Lokal usługowy na wynajem Warszawa Ursynów, Belgradzka
1 / 13
Szczegóły
- Cena: 5200 PLN
- Cena za m2: 99 PLN
- Powierzchnia: 52.7 m2
- Piętro: 0
- Nr oferty: 34964542997
Zapytaj o ofertę!
- VIVA INVEST sp.z o.o
- 696 666 999
- biuro@vivainvest.pl
Opis
Na wynajem lokal usługowo-handlowy o powierzchni 52,70 m², zlokalizowany w bezpośrednim sąsiedztwie stacji metra Metro Natolin oraz przystanku autobusowego.
Doskonała ekspozycja i stały przepływ pieszych gwarantują świetną widoczność oraz potencjał biznesowy.
Lokal znajduje się na parterze budynku, posiada dużą witrynę od strony ruchliwej ulicy, co zapewnia naturalne doświetlenie wnętrza oraz bardzo dobrą przestrzeń reklamową.
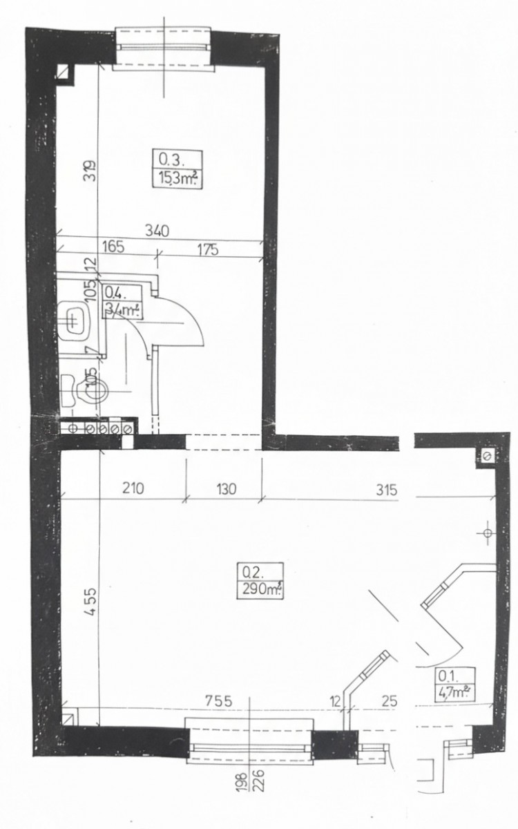
Lokal posiada dwa pomieszczenia, schowek , przedsionek i łazienkę - rzut w galerii zdjęć.
W budynku funkcjonują m.in. Carrefour, sklep odzieżowy, biuro podróży oraz szkoła językowa, co dodatkowo generuje stały ruch klientów.
Parking ogólnodostępny obok lokalu, jak również dostęp do parkingu osiedlowego za szlabanem.
WARUNKI NAJMU:
Czynsz najmu: 5200 zł + VAT
Czynsz do administracji ok 900 zł w zależności od zużycia mediów
Prąd
Kaucja: 7000 zł
Długoś okresu najmu do ustalenia.
Lokal dostępny od zaraz.
Zapraszam do kontaktu i na prezentację - to miejsce z potencjałem w jednej z najlepiej skomunikowanych części Ursynowa.
Doskonała ekspozycja i stały przepływ pieszych gwarantują świetną widoczność oraz potencjał biznesowy.
Lokal znajduje się na parterze budynku, posiada dużą witrynę od strony ruchliwej ulicy, co zapewnia naturalne doświetlenie wnętrza oraz bardzo dobrą przestrzeń reklamową.
Lokal posiada dwa pomieszczenia, schowek , przedsionek i łazienkę - rzut w galerii zdjęć.
W budynku funkcjonują m.in. Carrefour, sklep odzieżowy, biuro podróży oraz szkoła językowa, co dodatkowo generuje stały ruch klientów.
Parking ogólnodostępny obok lokalu, jak również dostęp do parkingu osiedlowego za szlabanem.
WARUNKI NAJMU:
Czynsz najmu: 5200 zł + VAT
Czynsz do administracji ok 900 zł w zależności od zużycia mediów
Prąd
Kaucja: 7000 zł
Długoś okresu najmu do ustalenia.
Lokal dostępny od zaraz.
Zapraszam do kontaktu i na prezentację - to miejsce z potencjałem w jednej z najlepiej skomunikowanych części Ursynowa.
Lokalizacja
W pobliżu
Park
- 253m - Birch Wood Park
- 531m - Skate Park imienia Romanowskiego
- 653m - Kempa Ursynowska (park linearny nad POW)
Szkoła
- 29m - SOCRATES School of Foreign Languages
- 146m - Expert Szkoła Jazdy - Ursynów
- 175m - Warsaw School of Music
Przychodnia
- 142m - Centrum Medyczne Biovitalmed
- 176m - NZOZ Medical Center
- 330m - S Dental Clinic
Przystanek
- 67m - Przystanek piekarnia
- 495m - OS. Wyżyny 01
- 700m - Natolin Płn.

























