Dom na sprzedaż Warszawa Bemowo, Szeligowska, 4 pokoje
Szczegóły
- Cena: 2 221 000 PLN
- Cena za m2: 13 026 PLN
- Powierzchnia: 170.5 m2
- Liczba pokoi: 4
- Piętro: 0
- Nr oferty: 34964534286
Zapytaj o ofertę!
- VIVA INVEST sp.z o.o
- 696 666 999
- biuro@vivainvest.pl
Opis
Mam przyjemność zaprezentować Państwu ofertę domu wolnostojącego w Szeligach przy Ulicy Szeligowskiej.
Usytuowany w cichym osiedlu domów jednorodzinnych na granicy z Warszawą Bemowo. Komunikację z centrum Warszawy umożliwia znakomita lokalizacja - 50 m od przystanku, niedaleko powstającej linii metra- stacji Metro Chrzanów oraz 5 minut od wjazdu na trasę S8.
Dom idealny dla rodziny z dziećmi: blisko żłobek, przedszkole, szkoła języków obcych dla dzieci, plac zabaw, skwer, niepubliczna szkoła podstawowa Montessori, szkoła podstawowa z oddziałami integracyjnymi, kościół.
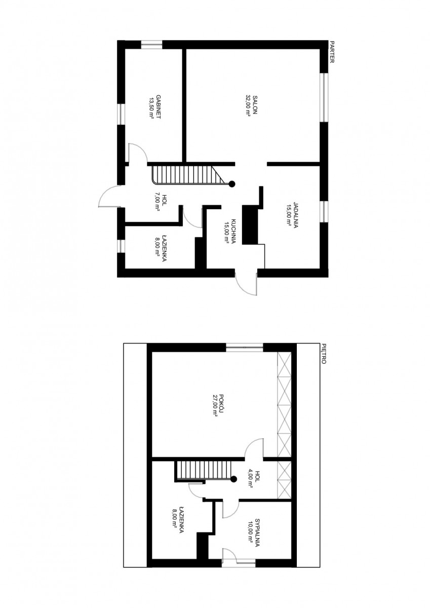
Dom o powierzchni użytkowej 140,5 mkw. składa się z:
PARTER o powierzchni 90,5mkw.
Salon z kominkiem o powierzchni 32 mkw. z wyjściem na duży taras.
Kuchnia z jadalnią 30 mkw.
Łazienka 8 mkw.
Hol 8 mkw.
Gabinet 13,5 mkw.
Garaż oraz pomieszczenie techniczne około 40 mkw.
PIĘTRO o powierzchni 50 mkw.
Główna sypialnia 27 mkw.
Pierwsza sypialnia 10 mkw. z wyjściem na taras.
Hol 5 mkw.
Łazienka z prysznicem 8 mkw.
Dom został wybudowany w 1996 roku w technologii murowanej, na działce o powierzchni 893 mkw. Duży taras oraz zadbana, porośnięta zielenią część ogrodowa o powierzchni ok 500 mkw. wyeksponowana jest na południe gwarantując dobre nasłonecznienie przez cały rok.
Dom posadowiony na narożnej działce o powierzchni o 893 o wymiarach 19,86 x 45,14 metra.
Dzięki świetnej lokalizacji blisko Bemowa oraz stacji Metra Chrzanów, z dobrym dojazdem do Warszawy.
W związku z intensywną rozbudową Osiedla Chrzanów w niewielkiej odległości znajdują się wszystkie istotne dla codziennego funkcjonowania miejsca - przystanek autobusowy, Stacja Metra, przedszkole, nowa szkoła podstawowa nr 407, sklepy, markety , bary i restauracje, oraz sprzyjający odpoczynkowi i rekreacji Park Górczewska.
W najbliższej okolicy:
- 500 m sklep spożywczy,
- 50 m przystanek autobusowy linii 743, zapewniającej bezpośredni dojazd do Warszawy,
- 340 m plac zabaw,
- 700 m trasa szybkiego ruchu S8,
- 2 km Stacja metra Chrzanów
- 2,5 km szkoła podstawowa - nowo powstała Szkoła Podstawowa nr 407,
- 2 km supermarket: Biedronka, Lidl,
- 2,7 km przychodnia,
- 3,2 km przedszkole,
- 4 km apteka,
- 5,3 km Handlowy Babice Nowe ( Biedronka, CCC, Rossmann, Empik, Smyk, Pepco, Kik, Martes Sport, Neonet),
- 500 m kościół.
W promieniu 4 km znajdują się restauracje oraz wiele punktów handlowo-usługowych.
PLAN ZAGOSPODAROWANIA - WARUNKI ZABUDOWY
Zgodnie z miejscowym planem zagospodarowania przestrzennego gminy Ożarów Mazowiecki nieruchomość znajduje się na terenie zabudowy mieszkaniowej jednorodzinnej, oznaczonej w miejscowym planie literą M.
§ 16.1. Plan ustala przeznaczenie podstawowe - zabudowa mieszkaniowa jednorodzinna w układzie wolno stojącym lub bliźniaczym.
2. Plan ustala:
1) przeznaczenie uzupełniające;
a) budynki gospodarcze (w tym garaże), jeden na działce o łącznej powierzchni zabudowy nie
większej niż 60m2
b) infrastruktura techniczna dla potrzeb lokalnych lub potrzeb działki, dojazdy, dojścia, podjazdy,
zieleń, miejsca postojowe
5. Plan ustala warunki zagospodarowania terenu i kształtowania zabudowy:
1) działka:
a) dla mieszkaniowej zabudowy wolno stojącej na działce o minimalnej powierzchni 1000m2 z dopuszczalnym 5% obniżeniem tej powierzchni, plan ustala lokowanie jednego budynku mieszkalnego z jednym mieszkaniem,
b) dla mieszkaniowej zabudowy bliźniaczej na działce o minimalnej powierzchni 1000m2 (dwa segmenty) z dopuszczalnym 5% obniżeniem tych powierzchni, plan ustala lokowanie jednego mieszkania w każdym segmencie,
2) kształtowanie zabudowy: a) na każdej działce ustala się zachowanie, co najmniej 50% powierzchni przyrodniczo aktywnej, maksymalną powierzchnię zabudowy do 40% oraz maksymalną powierzchnię utwardzoną do 50%.
STAN PRAWNY NIERUCHOMOŚCI
Mieszkanie własnościowe z księgą wieczystą.
Powyższa oferta ma charakter informacyjny i nie stanowi oferty handlowej w rozumieniu art. 66 §1 Kodeksu Cywilnego. Mieszkanie przeszło w tym roku generalne odświeżenie.
Lokalizacja
W pobliżu
- 385m - Park linearny
- 395m - Park
- 527m - Park
- 466m - Primary School Gaudeamus
- 612m - Szkoła Podstawowa nr 407
- 690m - Gimnazjum nr 81
- 436m - Przychodnia Lekarsko-Specjalistyczna BELL-MED
- 648m - Centrum Medyczne CMP Bemowo
- 914m - Centrum Zdrowia Psychicznego
- 280m - Chrzanów 02
- 388m - Człuchowska 01
- 412m - Siemiatycka 01





































