Dom na sprzedaż Warszawa Wawer, 4 pokoje
1 / 17
Szczegóły
- Cena: 1 990 000 PLN
- Cena za m2: 14 214 PLN
- Powierzchnia: 140 m2
- Liczba pokoi: 4
- Piętro: 0
- Nr oferty: 34964536272
Zapytaj o ofertę!
- VIVA INVEST sp.z o.o
- 696 666 999
- biuro@vivainvest.pl
Opis
Nieruchomość zdecydowanie warta uwagi!
Dom położony na dużej, narożnej działce, która zapewnia prywatność oraz spokój Dodatkowym atutem jest przestronny taras okalający dom z dwóch stron – idealne miejsce do wypoczynku.
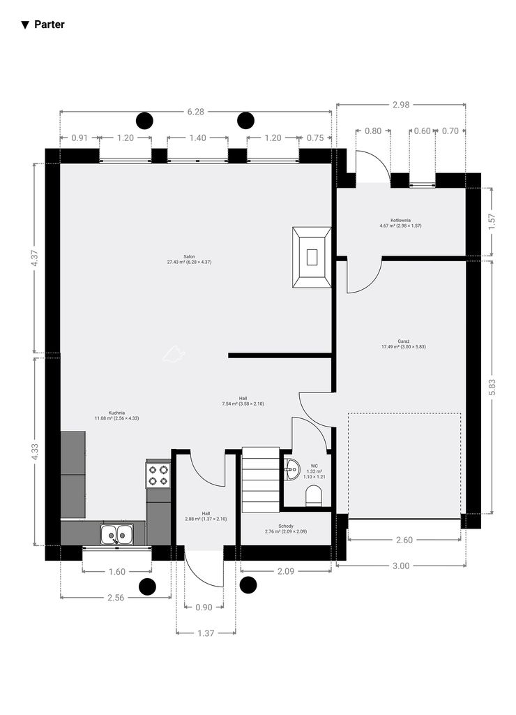
UKŁAD POMIESZCZEŃ
Parter:
STANDARD WYKOŃCZENIA
Kameralne, zamknięte osiedle 8 bliźniaków, położone w Aleksandrowie, na terenie Mazowieckiego Parku Krajobrazowego.
Osiedle powstało w 2018 roku i zostało wybudowane przez znanego, cenionego inwestora – który sam tutaj zamieszkuje. To gwarancja jakości wykonania, co potwierdzają obecni mieszkańcy.
Dom zbudowany z czerwonej cegły, dach pokryty dachówką betonową, z pełnym systemem odprowadzenia deszczówki.
LOKALIZACJA
Lokalizacja zapewnia jednocześnie ciszę i świetną komunikację z Warszawą.
Dom położony na dużej, narożnej działce, która zapewnia prywatność oraz spokój Dodatkowym atutem jest przestronny taras okalający dom z dwóch stron – idealne miejsce do wypoczynku.
UKŁAD POMIESZCZEŃ
Parter:
- hol
- jasny salon z wyjściem na taras
- otwarta, funkcjonalna kuchnia
- WC
- 3 sypialnie
- około 30 m² do własnej aranżacji (gabinet, pokój zabaw, dodatkowa sypialnia)
STANDARD WYKOŃCZENIA
- ogrzewanie podłogowe na całym parterze oraz w łazienkach
- w pozostałych pomieszczeniach – grzejniki (piec gazowy, konwekcyjny)
- drzwi wejściowe antywłamaniowe
- dodatkowe zabezpieczenie na bramie garażowej
- wyposażenie oraz zabudowa kuchni w cenie
- garaż jednostanowiskowy z wejściem bezpośrednio do domu
- dodatkowe miejsce parkingowe na zewnątrz
Kameralne, zamknięte osiedle 8 bliźniaków, położone w Aleksandrowie, na terenie Mazowieckiego Parku Krajobrazowego.
- 2 bramy wjazdowe – jedna prowadzi wprost do lasu (idealne miejsce na spacery i wybieganie dla psów)
- aktywne stowarzyszenie mieszkańców
- bardzo przyjazne, pomocne sąsiedztwo
Osiedle powstało w 2018 roku i zostało wybudowane przez znanego, cenionego inwestora – który sam tutaj zamieszkuje. To gwarancja jakości wykonania, co potwierdzają obecni mieszkańcy.
Dom zbudowany z czerwonej cegły, dach pokryty dachówką betonową, z pełnym systemem odprowadzenia deszczówki.
LOKALIZACJA
- Aleksandrów, Mazowiecki Park Krajobrazowy
- przystanek autobusowy ok. 200 m
- kilka przystanków do SKM w Falenicy
- 3 minuty samochodem do wjazdu na Południową Obwodnicę Warszawy
Lokalizacja zapewnia jednocześnie ciszę i świetną komunikację z Warszawą.
Lokalizacja
W pobliżu
Park
- 476m - Pomnik przyrody „Dąb Kulika” - dąb szypułkowy
- 1447m - Borowa Góra
- 1550m - Mazowiecki Landscape Park
Szkoła
- 954m - ŻAGLE Szkoła Podstawowa Stowarzyszenia STERNIK - klasy 0-3
- 983m - Szkoła Podstawowa nr 124 im. Stanisława Jachowicza w Warszawie
- 1012m - Szkoła Podstawowa z Oddziałami Integracyjnymi nr 216 "Klonowego Liścia"
Przychodnia
- 1540m - DARMED - Centrum Medyczne
- 1628m - Samodzielny Zespół Publicznych Zakładów Lecznictwa Otwartego, Przychodnia Rejonowa nr 6
- 2030m - Specialist Family Clinic
Przystanek
- 1682m - Warszawa Falenica
- 1696m - Zbójna Góra 01
- 1723m - Prasowa 01

































