Mieszkanie na sprzedaż Warszawa Mokotów, Jana Pawła Woronicza, 2 pokoje
1 / 13
Szczegóły
- Cena: 980 000 PLN
- Cena za m2: 17 345 PLN
- Powierzchnia: 56.5 m2
- Liczba pokoi: 2
- Piętro: 9
- Nr oferty: 34964536597
Zapytaj o ofertę!
- VIVA INVEST sp.z o.o
- 696 666 999
- biuro@vivainvest.pl
Opis
MOKOTÓW Mieszkanie dwupokojowe z garażem SPRZEDAŻ
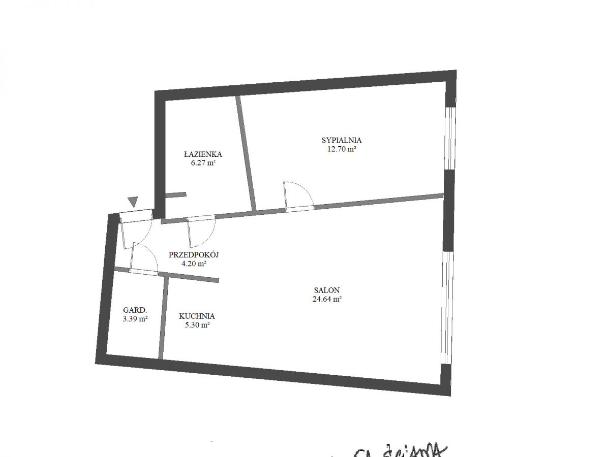
Ciche, umeblowane mieszkanie na ul. Woronicza ma powierzchnię 56,5 m2 składa się z:
ŁĄCZNA powierzchnia mieszkania: 56,5 m2
Mieszkanie znajduje się na piętrze IX w budynku XI piętrowym.
Z okien rozpościera się piękny widok na zieleń na patio.
Miejsce garażowe jest na poziomie -1 dodatkowo płatne - 60 tyś zł
Zapraszam na prezentację
Ciche, umeblowane mieszkanie na ul. Woronicza ma powierzchnię 56,5 m2 składa się z:
- salonu z ogromnymi oknami o powierzchni: 24,64 m2
- aneksu kuchennego o powierzchni: 5,30 m2
- sypialni o powierzchni: 12,70 m2
- garderoby o powierzchni: 3,39 m2
- łazienki o powierzchni: 6,27 m2
ŁĄCZNA powierzchnia mieszkania: 56,5 m2
Mieszkanie znajduje się na piętrze IX w budynku XI piętrowym.
Z okien rozpościera się piękny widok na zieleń na patio.
Miejsce garażowe jest na poziomie -1 dodatkowo płatne - 60 tyś zł
Zapraszam na prezentację
Lokalizacja
W pobliżu
Park
- 852m - Park Wyględowski - Marina Mokotów II
- 952m - Park kieszonkowy na Mokotowie
- 1041m - Platinium Business Park Pond
Szkoła
- 196m - Szkoła Handlowa
- 358m - Early Stage
- 405m - SZKOŁA PODSTAWOWA SPECJALNA NR 22
Przychodnia
- 274m - Family medicine clinic NZOZ
- 842m - Centrum Medyczne Synexus Warszawa
- 879m - Medical Center Enel-Med
Przystanek
- 302m - Maklakiewicza 02
- 395m - Maklakiewicza 01
- 477m - Novotel 02

























