Mieszkanie na sprzedaż Warszawa Mokotów, Śniardwy, 3 pokoje
1 / 15
Szczegóły
- Cena: 670 000 PLN
- Cena za m2: 14 790 PLN
- Powierzchnia: 45.3 m2
- Liczba pokoi: 3
- Piętro: 10
- Nr oferty: 34964548277
Zapytaj o ofertę!
- VIVA INVEST sp.z o.o
- 696 666 999
- biuro@vivainvest.pl
Opis
Na sprzedaż ustawne 3 pokojowe mieszkanie o powierzchni 45,3 m², zlokalizowane Mokotowie - Służew. To idealna propozycja dla osób szukających przestrzeni do życia lub atrakcyjnej nieruchomości inwestycyjnej.
Mieszkanie znajduje się w dobrze rozwiniętej okolicy, z szybkim dostępem do komunikacji miejskiej - w tym nowej linii tramwajowej, która zapewnia wygodny dojazd do centrum Warszawy.
Najważniejsze atuty nieruchomości:
• kameralna, cicha okolica - budynek otoczony zielenią, z dala od ruchliwych ulic
• funkcjonalny, rozkładowy układ pomieszczeń
• możliwość przywrócenia układu 3 pokoi
• duży potencjał aranżacyjny - opcja stworzenia salonu z aneksem kuchennym i dwóch sypialni
• balkon (loggia) oraz przestronna piwnica (ok. 5 m²)
• mieszkanie dostępne od zaraz
• zadbany budynek po modernizacji części wspólnych
• pełna infrastruktura handlowo-usługowa w najbliższym otoczeniu
Lokalizacja:
• przystanek autobusowy - ok. 2 minuty pieszo
• Metro Służew -13 min
• W bliskiej okolicy trzy parki - Park nad stawek Służewieckim, Park Pawlukiewicza, Park Dolinka Służewiecka
• Galeria Mokotów - ok. 3 minut komunikacją
• 100 m OSIR Mokotów
• sklepy i usługi - w zasięgu kilku minut
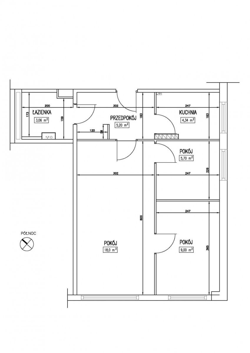
Układ mieszkania (45,3 m²): salon, dwie sypialnie, widna oddzielna kuchnia, łazienka z prysznicem oraz przedpokój. Lokal do odświeżenia/ lub własnej aranżacji. W mieszkaniu wymieniono instalację elektryczną, zrobiono gładzie.
Budynek: Mieszkanie usytuowane jest na 10. (ostatnim) piętrze w budynku z 1974 roku. Budynek przeszedł remont pionów wodnych -kanalizacyjnych, instalacji gazowej, wymianę wind.
Stan prawny: Pełna własność z księgą wieczystą, możliwość posiłkowania sie kredytem.
Dodatkowo do mieszkania przynależy piwnica 1,4 m2
Możliwość przejęcia umowy najmu umożliwiającą korzystanie schoweka na kondygnacji tej samej co lokal.
Mieszkanie znajduje się w dobrze rozwiniętej okolicy, z szybkim dostępem do komunikacji miejskiej - w tym nowej linii tramwajowej, która zapewnia wygodny dojazd do centrum Warszawy.
Najważniejsze atuty nieruchomości:
• kameralna, cicha okolica - budynek otoczony zielenią, z dala od ruchliwych ulic
• funkcjonalny, rozkładowy układ pomieszczeń
• możliwość przywrócenia układu 3 pokoi
• duży potencjał aranżacyjny - opcja stworzenia salonu z aneksem kuchennym i dwóch sypialni
• balkon (loggia) oraz przestronna piwnica (ok. 5 m²)
• mieszkanie dostępne od zaraz
• zadbany budynek po modernizacji części wspólnych
• pełna infrastruktura handlowo-usługowa w najbliższym otoczeniu
Lokalizacja:
• przystanek autobusowy - ok. 2 minuty pieszo
• Metro Służew -13 min
• W bliskiej okolicy trzy parki - Park nad stawek Służewieckim, Park Pawlukiewicza, Park Dolinka Służewiecka
• Galeria Mokotów - ok. 3 minut komunikacją
• 100 m OSIR Mokotów
• sklepy i usługi - w zasięgu kilku minut
Układ mieszkania (45,3 m²): salon, dwie sypialnie, widna oddzielna kuchnia, łazienka z prysznicem oraz przedpokój. Lokal do odświeżenia/ lub własnej aranżacji. W mieszkaniu wymieniono instalację elektryczną, zrobiono gładzie.
Budynek: Mieszkanie usytuowane jest na 10. (ostatnim) piętrze w budynku z 1974 roku. Budynek przeszedł remont pionów wodnych -kanalizacyjnych, instalacji gazowej, wymianę wind.
Stan prawny: Pełna własność z księgą wieczystą, możliwość posiłkowania sie kredytem.
Dodatkowo do mieszkania przynależy piwnica 1,4 m2
Możliwość przejęcia umowy najmu umożliwiającą korzystanie schoweka na kondygnacji tej samej co lokal.
Lokalizacja
W pobliżu
Park
- 512m - Park Bartłomieja S
- 645m - Park nad stawem Służewieckim
- 683m - Park Służewiecki
Szkoła
- 111m - S.O.S Szkoła Pływania - Mokotów
- 112m - 🏊♀️ Klub Sportowy GOLD - szkoła pływania dla dzieci i dorosłych, nauka pływania Warszawa Mokotów, Ursynów, Wilanów, Kabaty
- 166m - Hasten - nauka i doskonalenie pływania dla dzieci, młodzieży i dorosłych
Przychodnia
- 377m - Poradnia Pediatryczna dla Dzieci Chorych
- 383m - Medical outpatient clinic ZOZ Mokotow
- 383m - Poradnie specjalistyczne Przychodni Rejonowo - Specjalistycznej SZPZLO Warszawa-Mokotów
Przystanek
- 190m - Gotarda 02
- 254m - Gotarda 01
- 278m - Jadźwingów 01





























