Mieszkanie na sprzedaż Warszawa Ochota, Grójecka, 1 pokoje
1 / 7
Szczegóły
- Cena: 369 000 PLN
- Cena za m2: 16 927 PLN
- Powierzchnia: 21.8 m2
- Liczba pokoi: 1
- Piętro: 5
- Nr oferty: 1202316
Zapytaj o ofertę!
- Karol Podgórski
- 731400852
- k.podgorski@vivainvest.pl
Opis
Super lokalizacja !! Idealna propozycja pod inwestycję!.
Kawalerka pod inwestycje na Ochocie blisko komunikacji.
Tramwaj naprzeciwko ulicy.
Nieruchomość położona jest przy ul. Grójeckiej w bloku z lat 60-tych w zielonej okolicy.
Doskonała komunikacja - przystanek tramwajowy na przeciwko ulicy.
Lokalizacja:
Mieszkanie znajduje się przy ul. Grójeckiej 116, w doskonałym punkcie Ochoty - z szybkim dostępem do centrum miasta oraz bogatą infrastrukturą w najbliższym sąsiedztwie.
• Komunikacja: przystanki tramwajowe i autobusowe niemal pod samym budynkiem, szybki dojazd do centrum miasta i Uczelnie Wyższe.
• Zakupy: w pobliżu znajdują się Biedronka oraz Lidl, a także liczne sklepy osiedlowe, piekarnie i apteki.
• Rekreacja: w zasięgu krótkiego spaceru dostępne są tereny zielone i parki, idealne do odpoczynku i aktywności na świeżym powietrzu.
• Edukacja i usługi: w okolicy znajdują się szkoły, przedszkola, restauracje oraz liczne punkty usługowe.
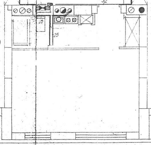
Układ mieszkania:
Powierzchnia mieszkania to 21.80 m2 na które składa się :
• Przedpokój - 3,9 m2
• Salon - 13.8 m2
• Łazienka - 2 m2
• Aneks - 2.1 m2
Mieszkanie do generalnego remontu. Zostały wymienione okna, piony pod-kan, oraz cześciowo instalacja elektryczna.
Do mieszkania przynależy piwnica.
Czynsz administracyjny: ok. 690 zł
Komunikacja:
Hale Banacha (187 m)
Tramwaj: 7 9 15
- Dickensa (205 m)
Tramwaj: 7 9 15
Autobus: 128 154 186 208 414 N01 N38 N88
- Skorochód-Majewskiego (282 m)
Autobus: 128 186
- Urbanistów (303 m)
Autobus: 157 521
- Opaczewska (355 m)
Autobus: 157 521
Dlaczego warto?
• Funkcjonalny, rozkładowy układ z dodatkową przestrzenią balkon plus duży taras
• Szybki dojazd zarówno do centrum jak i wyższe uczelnie(WUM).
• Świetnie skomunikowana lokalizacja z pełną infrastrukturą.
• Idealna propozycja zarówno dla studenta, singla jak i pod inwestycję.
Kawalerka pod inwestycje na Ochocie blisko komunikacji.
Tramwaj naprzeciwko ulicy.
Nieruchomość położona jest przy ul. Grójeckiej w bloku z lat 60-tych w zielonej okolicy.
Doskonała komunikacja - przystanek tramwajowy na przeciwko ulicy.
Lokalizacja:
Mieszkanie znajduje się przy ul. Grójeckiej 116, w doskonałym punkcie Ochoty - z szybkim dostępem do centrum miasta oraz bogatą infrastrukturą w najbliższym sąsiedztwie.
• Komunikacja: przystanki tramwajowe i autobusowe niemal pod samym budynkiem, szybki dojazd do centrum miasta i Uczelnie Wyższe.
• Zakupy: w pobliżu znajdują się Biedronka oraz Lidl, a także liczne sklepy osiedlowe, piekarnie i apteki.
• Rekreacja: w zasięgu krótkiego spaceru dostępne są tereny zielone i parki, idealne do odpoczynku i aktywności na świeżym powietrzu.
• Edukacja i usługi: w okolicy znajdują się szkoły, przedszkola, restauracje oraz liczne punkty usługowe.
Układ mieszkania:
Powierzchnia mieszkania to 21.80 m2 na które składa się :
• Przedpokój - 3,9 m2
• Salon - 13.8 m2
• Łazienka - 2 m2
• Aneks - 2.1 m2
Mieszkanie do generalnego remontu. Zostały wymienione okna, piony pod-kan, oraz cześciowo instalacja elektryczna.
Do mieszkania przynależy piwnica.
Czynsz administracyjny: ok. 690 zł
Komunikacja:
Hale Banacha (187 m)
Tramwaj: 7 9 15
- Dickensa (205 m)
Tramwaj: 7 9 15
Autobus: 128 154 186 208 414 N01 N38 N88
- Skorochód-Majewskiego (282 m)
Autobus: 128 186
- Urbanistów (303 m)
Autobus: 157 521
- Opaczewska (355 m)
Autobus: 157 521
Dlaczego warto?
• Funkcjonalny, rozkładowy układ z dodatkową przestrzenią balkon plus duży taras
• Szybki dojazd zarówno do centrum jak i wyższe uczelnie(WUM).
• Świetnie skomunikowana lokalizacja z pełną infrastrukturą.
• Idealna propozycja zarówno dla studenta, singla jak i pod inwestycję.
Lokalizacja
W pobliżu
Park
- 362m - Skwer Dobrego Maharadży
- 604m - Zasław Malicki park
- 768m - Forty Korotyńskiego Park
Szkoła
- 113m - LXIX Liceum Ogólnokształcące z Oddziałami Integracyjnymi im. Bohaterów Powstania Warszawskiego 1944
- 245m - British School Warszawa Ochota
- 441m - Primary School No. 152 Maria Dąbrowska
Przychodnia
- 264m - Centrum Zdrowia Psychicznego - Poradnia Zdrowia SZPZLO Warszawa-Ochota
- 266m - Poradnia Podstawowej Opieki Zdrowotnej
- 284m - Valmed
Przystanek
- 157m - Dickensa 05
- 193m - Hale Banacha 01
- 197m - Dickensa 03













