Mieszkanie na sprzedaż Warszawa Wilanów, Jara, 3 pokoje
1 / 21
Szczegóły
- Cena: 1 361 850 PLN
- Cena za m2: 18 999 PLN
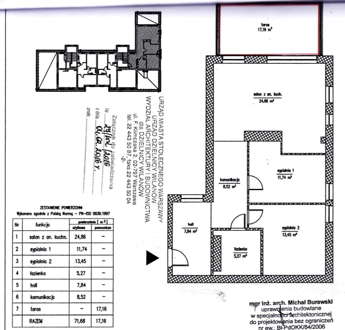
- Powierzchnia: 71.68 m2
- Liczba pokoi: 3
- Piętro: 2
- Nr oferty: 1839341
Zapytaj o ofertę!
- Katarzyna Winnicka
- 731400177
- k.winnicka@vivainvest.pl
Opis
ZAPRASZAM NA PRZEDPREMIEROWE PREZENTACJE.
Na sprzedaż oferujemy wyjątkowe mieszkanie o powierzchni 71,68 m² z tarasem o powierzchni 17,16 m², położone na 2 piętrze w kameralnym ogrodzonym budynku (bez windy). Lokal wyróżnia się ciekawym, dopracowanym wystrojem w stylu eklektycznym, który łączy nowoczesność z designerskimi detalami i wysokiej jakości materiałami, a także bogatymi przestrzeniami dodatkowymi: aż 2 komórki lokatorskie, miejsce parkingowe podziemne + miejsce parkingowe naziemne na zamkniętym terenie ogrodzonej nieruchomości.
MIESZKANIE składa się z (plan mieszkania w sekcji zdjęcia):
1. przestronnego salonu 25 m2 z wyjściem na taras, oraz sporym i dobrze zagospodarowanym aneksem kuchennym
2. dwóch sypialni 12 m2 i 13,5 m2,
3. łazienki 5,3 m3,
4. funkcjonalnego przedpokoju z zabudową szaf 16 m2.
Z salonu prowadzi wyjście na przestronny taras o powierzchni 17,16 m², skierowany na stronę zachodnią, co zapewnia dużo naturalnego światła i przyjemne popołudniowe słońce.
POWIERZCHNIE PRZYNALEŻNE:
1. Komórki lokatorskie - 2 sztuki
2. Miejsce parkingowe - podziemne 1 sztuka
3. Miejsce Parkingowe - Naziemne - 1 sztuka
Do mieszkania przynależą również dodatkowe udogodnienia znacząco podnoszące komfort codziennego życia:
- dwie komórki lokatorskie, zapewniające dodatkową przestrzeń do przechowywania,
- miejsce parkingowe w garażu podziemnym, drugie miejsce parkingowe naziemne na terenie ogrodzonego osiedla.
Takie rozwiązanie jest niezwykle praktyczne - pozwala wygodnie parkować dwa samochody lub zapewnia dodatkowe miejsce dla gości.
STANDARD WYKOŃCZENIA:
Mieszkanie zostało wykończone z dużą dbałością o detale oraz z wykorzystaniem wysokiej jakości materiałów:
- w pokojach panele o najwyższej klasie ścieralności A6,
- w kuchni i przedpokoju gres,
- w łazience heksagonowe płytki z kolekcji Macieja Zienia,
- nowe okna PCV w kolorze orzech,
- designerska szklana ściana z wysokiej jakości białego szkła, zadrukowana plakatami filmowymi.
KUCHNIA: Stylowa i funkcjonalna kuchnia wyposażona jest w:
kamienne blaty, fornirowane meble z drzewa mango, sprzęt AGD w zabudowie: lodówka, płyta indukcyjna, piekarnik, zmywarka.
SALON: Wyjątkowy charakter wnętrza podkreśla ceglana ściana z bio-kominkiem, tworząca ciepły i przytulny klimat.
SYPIALNIA: W sypialni znajduje się łoże małżeńskie, dwie szafki nocne, pojemna szafa.
PRZEDPOKÓJ: wyposażony jest w pojemne szafy z lustrami, zaprojektowane i wykonane przez Chobot Design, zapewniające dużo miejsca do przechowywania.
OPŁATY:
1. CZYNSZ - 707 zł stały przez cały rok, zawiera zaliczkę na wodę (zimna), ścieki oraz wywóz śmieci
2. PRĄD
3. GAZ
STAN SPRAWNY:
1. Odrębna własność
2. Księga wieczysta
3. Możliwość kredytowania
LOKALIZACJA:
Nieruchomość położona jest w cichej, zielonej i bezpiecznej części Wilanowa, idealnej dla osób ceniących spokój i bliskość natury.
W okolicy znajdują się:
plaża nad Wisłą - ok. 10 minut spacerem,
Pałac w Wilanowie,
liczne restauracje i miejsca do rekreacji,
siłownia, fitness club Calypso, squash, klub tenisowy,
stadnina koni, pole golfowe, zajęcia jogi,
przedszkole, szkoła, sklep Dino.
KOMUNIKACJA:
2 linie autobusowe w odległości ok. 150 m od budynku,
3 minuty samochodem do centrum handlowego Plac Vogla i Multibox.
PODSUMOWANIE:
To mieszkanie będzie doskonałym wyborem dla osób poszukujących oryginalnego wnętrza, wysokiego standardu wykończenia oraz spokojnej, zielonej lokalizacji, a jednocześnie z wygodnym dostępem do infrastruktury miejskiej.
CENA (mieszkanie + dodatkowo płatne powierzchnie):
- mieszkanie 18.999,00 PLN / m2
- komórka lokatorska 20.000,00 pln sztuka (są dwie sztuki)
- miejsce parkingowe podziemne 50.000,00 PLN
- miejsce parkingowe naziemne 30.000,00 PLN
Na sprzedaż oferujemy wyjątkowe mieszkanie o powierzchni 71,68 m² z tarasem o powierzchni 17,16 m², położone na 2 piętrze w kameralnym ogrodzonym budynku (bez windy). Lokal wyróżnia się ciekawym, dopracowanym wystrojem w stylu eklektycznym, który łączy nowoczesność z designerskimi detalami i wysokiej jakości materiałami, a także bogatymi przestrzeniami dodatkowymi: aż 2 komórki lokatorskie, miejsce parkingowe podziemne + miejsce parkingowe naziemne na zamkniętym terenie ogrodzonej nieruchomości.
MIESZKANIE składa się z (plan mieszkania w sekcji zdjęcia):
1. przestronnego salonu 25 m2 z wyjściem na taras, oraz sporym i dobrze zagospodarowanym aneksem kuchennym
2. dwóch sypialni 12 m2 i 13,5 m2,
3. łazienki 5,3 m3,
4. funkcjonalnego przedpokoju z zabudową szaf 16 m2.
Z salonu prowadzi wyjście na przestronny taras o powierzchni 17,16 m², skierowany na stronę zachodnią, co zapewnia dużo naturalnego światła i przyjemne popołudniowe słońce.
POWIERZCHNIE PRZYNALEŻNE:
1. Komórki lokatorskie - 2 sztuki
2. Miejsce parkingowe - podziemne 1 sztuka
3. Miejsce Parkingowe - Naziemne - 1 sztuka
Do mieszkania przynależą również dodatkowe udogodnienia znacząco podnoszące komfort codziennego życia:
- dwie komórki lokatorskie, zapewniające dodatkową przestrzeń do przechowywania,
- miejsce parkingowe w garażu podziemnym, drugie miejsce parkingowe naziemne na terenie ogrodzonego osiedla.
Takie rozwiązanie jest niezwykle praktyczne - pozwala wygodnie parkować dwa samochody lub zapewnia dodatkowe miejsce dla gości.
STANDARD WYKOŃCZENIA:
Mieszkanie zostało wykończone z dużą dbałością o detale oraz z wykorzystaniem wysokiej jakości materiałów:
- w pokojach panele o najwyższej klasie ścieralności A6,
- w kuchni i przedpokoju gres,
- w łazience heksagonowe płytki z kolekcji Macieja Zienia,
- nowe okna PCV w kolorze orzech,
- designerska szklana ściana z wysokiej jakości białego szkła, zadrukowana plakatami filmowymi.
KUCHNIA: Stylowa i funkcjonalna kuchnia wyposażona jest w:
kamienne blaty, fornirowane meble z drzewa mango, sprzęt AGD w zabudowie: lodówka, płyta indukcyjna, piekarnik, zmywarka.
SALON: Wyjątkowy charakter wnętrza podkreśla ceglana ściana z bio-kominkiem, tworząca ciepły i przytulny klimat.
SYPIALNIA: W sypialni znajduje się łoże małżeńskie, dwie szafki nocne, pojemna szafa.
PRZEDPOKÓJ: wyposażony jest w pojemne szafy z lustrami, zaprojektowane i wykonane przez Chobot Design, zapewniające dużo miejsca do przechowywania.
OPŁATY:
1. CZYNSZ - 707 zł stały przez cały rok, zawiera zaliczkę na wodę (zimna), ścieki oraz wywóz śmieci
2. PRĄD
3. GAZ
STAN SPRAWNY:
1. Odrębna własność
2. Księga wieczysta
3. Możliwość kredytowania
LOKALIZACJA:
Nieruchomość położona jest w cichej, zielonej i bezpiecznej części Wilanowa, idealnej dla osób ceniących spokój i bliskość natury.
W okolicy znajdują się:
plaża nad Wisłą - ok. 10 minut spacerem,
Pałac w Wilanowie,
liczne restauracje i miejsca do rekreacji,
siłownia, fitness club Calypso, squash, klub tenisowy,
stadnina koni, pole golfowe, zajęcia jogi,
przedszkole, szkoła, sklep Dino.
KOMUNIKACJA:
2 linie autobusowe w odległości ok. 150 m od budynku,
3 minuty samochodem do centrum handlowego Plac Vogla i Multibox.
PODSUMOWANIE:
To mieszkanie będzie doskonałym wyborem dla osób poszukujących oryginalnego wnętrza, wysokiego standardu wykończenia oraz spokojnej, zielonej lokalizacji, a jednocześnie z wygodnym dostępem do infrastruktury miejskiej.
CENA (mieszkanie + dodatkowo płatne powierzchnie):
- mieszkanie 18.999,00 PLN / m2
- komórka lokatorska 20.000,00 pln sztuka (są dwie sztuki)
- miejsce parkingowe podziemne 50.000,00 PLN
- miejsce parkingowe naziemne 30.000,00 PLN
Lokalizacja
W pobliżu
Park
- 2000m - Wilanów Park
- 3165m - Park im. Czesława Szczubełka
- 3999m - Wege Park
Szkoła
- 425m - WOW! English - Szkoła Językowa
- 435m - Joy Primary School
- 1845m - Szkoła Podstawowa Niepubliczna im. Wiktorii Wiedeńskiej Fundacji Edukacyjnej "Varsovia"
Przychodnia
- 653m - Lekarz Rodzinny Magdalena Czerska
- 2070m - Salvet. Veterinary clinic
- 2251m - Poradnia Podstawowej Opieki Zdrowotnej dla Dzieci Przychodni Rejonowo - Specjalistycznej SZPZLO Warszawa-Mokotów
Przystanek
- 1698m - Przystanek promowy Wilanów Zawady
- 2089m - Przystanek Techniczny Wilanów
- 2220m - Wilanów 01









































