Lokal usługowy na wynajem Warszawa Śródmieście, Elektoralna
1 / 8
Szczegóły
- Cena: 2176 PLN
- Cena za m2: 56 PLN
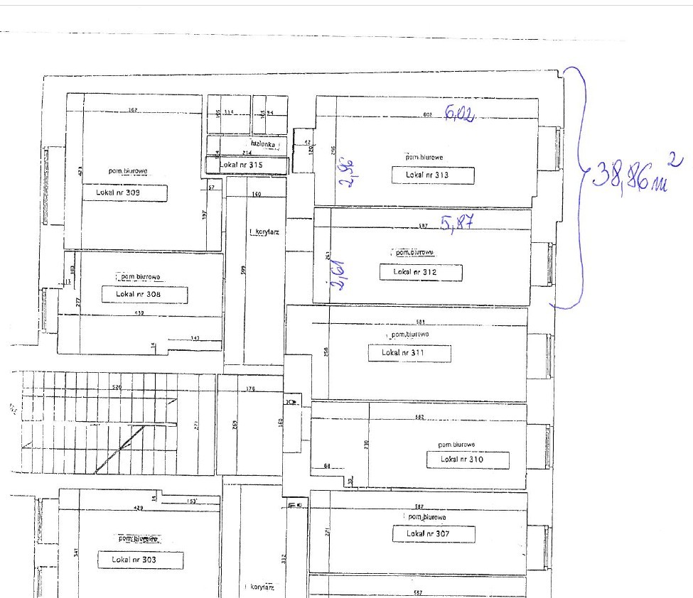
- Powierzchnia: 38.86 m2
- Piętro: 0
- Nr oferty: 34964544737
Zapytaj o ofertę!
- VIVA INVEST sp.z o.o
- 696 666 999
- biuro@vivainvest.pl
Opis
Do wynajęcia dwupokojowy lokal biurowy o powierzchni 38,86m2, położony w samym centrum Warszawy przy ul. Elektoralnej. Lokal znajduje się w klimatycznej kamienicy z 1904 roku, co nadaje miejscu wyjątkowy charakter oraz prestiżowy klimat do prowadzenia działalności.
Lokal usytuowany jest na 3. piętrze budynku (bez windy). Przestrzeń idealnie sprawdzi się na działalność biurową, konsultingową, księgową lub prawną.
LOKALIZACJA:
Nieruchomość znajduje się w sercu Warszawy - w Śródmieściu. W pobliżu znajdują się przystanki tramwajowe i autobusowe przy Hali Mirowskiej oraz Placu Bankowym, a także stacja metra Ratusz Arsenał, oddalona o kilka minut spacerem. W okolicy dostępne są liczne restauracje, kawiarnie oraz punkty usługowe, co zapewnia komfort codziennej pracy.
WARUNKI NAJMU:
Najemca, poza czynszem najmu, zobowiązany jest pokrywać opłaty dodatkowe:
opłaty eksploatacyjne: 8zł/m²
opłata serwisowa: 49,74zł
wywóz śmieci: 15,74zł
sprzątanie powierzchni wspólnych: 100 zł
energia elektryczna według zużycia
Łączny koszt najmu wynosi 2 650,60 zł netto miesięcznie + energia elektryczna.
Do podanych kwot należy doliczyć 23% podatku VAT.
INFORMACJE DODATKOWE:
umowa na czas nieokreślony (minimum 2 lata)
kaucja: 7500zł.
Posiadam również inne lokale/pokoje w tym budynku, zapraszam do kontaktu.
Lokal usytuowany jest na 3. piętrze budynku (bez windy). Przestrzeń idealnie sprawdzi się na działalność biurową, konsultingową, księgową lub prawną.
LOKALIZACJA:
Nieruchomość znajduje się w sercu Warszawy - w Śródmieściu. W pobliżu znajdują się przystanki tramwajowe i autobusowe przy Hali Mirowskiej oraz Placu Bankowym, a także stacja metra Ratusz Arsenał, oddalona o kilka minut spacerem. W okolicy dostępne są liczne restauracje, kawiarnie oraz punkty usługowe, co zapewnia komfort codziennej pracy.
WARUNKI NAJMU:
Najemca, poza czynszem najmu, zobowiązany jest pokrywać opłaty dodatkowe:
opłaty eksploatacyjne: 8zł/m²
opłata serwisowa: 49,74zł
wywóz śmieci: 15,74zł
sprzątanie powierzchni wspólnych: 100 zł
energia elektryczna według zużycia
Łączny koszt najmu wynosi 2 650,60 zł netto miesięcznie + energia elektryczna.
Do podanych kwot należy doliczyć 23% podatku VAT.
INFORMACJE DODATKOWE:
umowa na czas nieokreślony (minimum 2 lata)
kaucja: 7500zł.
Posiadam również inne lokale/pokoje w tym budynku, zapraszam do kontaktu.
Lokalizacja
W pobliżu
Park
- 304m - Park Mirowski
- 431m - Velik Park
- 504m - Saxon Garden
Szkoła
- 159m - ZESPÓŁ SZKÓŁ SPECJALNYCH NR 85
- 165m - Special School No. 63
- 215m - Pedagogium - Higher School of Social Sciences in Warsaw
Przychodnia
- 114m - PRZYCHODNIA LEKARZY SPECJALISTÓW "OMEGA".WIZYTY DOMOWE.
- 290m - EvoMed
- 462m - Grupa Medyczna Puls
Przystanek
- 279m - Plac Bankowy 03
- 287m - Kawiarnia aktorska ,Przystanek Kamienica'
- 323m - Pl.Bankowy 07















