Lokal usługowy na wynajem Warszawa Wola, Marcina Kasprzaka, 2 pokoje
1 / 9
Szczegóły
- Cena: 2950 PLN
- Cena za m2: 145 PLN
- Powierzchnia: 20.35 m2
- Liczba pokoi: 2
- Piętro: 6
- Nr oferty: 34964545830
Zapytaj o ofertę!
- VIVA INVEST sp.z o.o
- 696 666 999
- biuro@vivainvest.pl
Opis
Jeżeli szukasz biura w sercu Warszawy, mamy dla Ciebie doskonałą propozycję!
Biuro o powierzchni 20 m², położone w dogodnej lokalizacji na warszawskiej Woli przy ulicy Kasprzaka 29, w odległości około 4,5 km od Centrum Warszawy.
Lokal idealnie nadaje się na biuro dla małych firm, gabinet psychologiczny, miejsce do spotkań z klientami. To miejsce będzie idealne dla wszystkich którzy poszukują profesjonalnego miejsca pracy w prestiżowej lokalizacji.
Lokalizacja:
Dzielnica Wola posiada wiele atutów, które przyciągają tutaj wiele osób zrówno mieszkańców jak rownież firmy.
- centralne położenie: mieszkańcy mają łatwy dostęp do biznesowych, handlowych miejsc w centrum miasta, zaledwie 15 min komunikacją od Lotniska
- rozwinięta infrastruktura, dzielnica Wola jest dobrze skomunikowana transportem publicznym,
- dynamiczny rozwój: w ostatnich latach Wola stała się jednym z najszybciej rozwijających się obszarów Warszawy. Powstają tu nowe biurowce, centra handlowe i osiedla mieszkaniowe, które przyciągają inwestorów i tworzy nowe miejsca pracy.
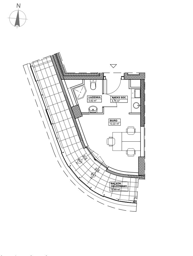
Rozkład pomieszczeń:
- Open space 12,22 m2
- Aneks kuchenny 4,71 m2 (lodówka)
- Łazienka 3,42 m2 (pralka)
- Balkon 14,65 m2
Główne atuty biura:
- W pełni wyposażone i gotowe do natychmiastowego użytku
- Jasne pomieszczenie
- Możliwość dostosowania aranżacji do potrzeb Najemcy
- Miejsce parkingowe w garażu podziemnym
Pozostałe informacje:
- W pełni wyposażone i gotowe do natychmiastowego użytku
- Jasne pomieszczenie
- Możliwość dostosowania aranżacji do potrzeb Najemcy
- Miejsce parkingowe w garażu podziemnym
Pozostałe informacje:
Umowa najmu instytucjonalnego.
Całkowity koszt najmu to 2.950 zł + VAT + czynsz administracyjny 463,40 zł + zużycie mediów ponad zaliczki oraz koszty energii.
Kaucja w wysokości 3.000 zł.
Miejsce garażowe dodatkowo płatne 300 zł + VAT
Serdecznie polecam tę ofertę i zapraszam na prezentację!
Treść niniejszego ogłoszenia nie stanowi oferty handlowej w rozumieniu Kodeksu Cywilnego.
Całkowity koszt najmu to 2.950 zł + VAT + czynsz administracyjny 463,40 zł + zużycie mediów ponad zaliczki oraz koszty energii.
Kaucja w wysokości 3.000 zł.
Miejsce garażowe dodatkowo płatne 300 zł + VAT
Serdecznie polecam tę ofertę i zapraszam na prezentację!
Treść niniejszego ogłoszenia nie stanowi oferty handlowej w rozumieniu Kodeksu Cywilnego.
Lokalizacja
W pobliżu
Park
- 515m - Multimedialne fontanny w Parku Szymańskiego
- 696m - Baldachim na kółku (Miejsce spotkań rolkarzy-Ławeczka pod drzewem)
- 704m - Józef Sowiński Park
Szkoła
- 161m - Szkoła
- 163m - Szkoła Podstawowa nr 132 im. Sandora Petofiego
- 247m - Katolicka Szkoła Podstawowa im. ks. Piotra Skargi
Przychodnia
- 770m - Przychodnia Wolska Wielospecjalistyczna. NZOZ
- 773m - Centrum Medyczne CMP
- 795m - Centralna Wojskowa Przychodnia Lekarska SPZOZ CePeLek
Przystanek
- 72m - PKP Wola (Kasprzaka) 02
- 106m - PKP Wola (Kasprzaka) 05
- 174m - PKP Wola (Kasprzaka) 06

















